
(If you do not have an agent and work directly with the listing agent)
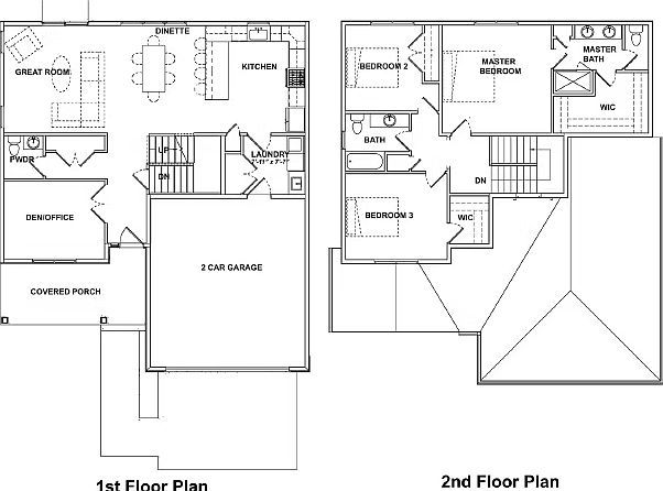
Welcome to Stillwell Grove, Huntley's newest enclave of just 41 homesites-perfect for buyers who prefer the privacy of a smaller community over a large subdivision. Ideally situated near the vibrant Rt 47 corridor, shopping, dining, and conveniences are right at your doorstep. Welcome to the ASPEN, this new construction two story home features a spacious covered front porch, an open-concept main floor with seamless flow between living, dining, and kitchen areas, plus a cozy den for work or relaxation. A convenient powder room and laundry center complete the first floor. Upstairs, three generously sized bedrooms include a luxurious primary suite with dual sinks, a walk-in shower, and a walk-in closet, while two additional bedrooms share a stylish hall bath. With a FULL BASEMENT and 2-car garage, this home combines thoughtful design and comfortable living. This neighborhood is not age-restricted and provides the ease of lawn care and snow removal included-true low-maintenance living at its best! Choose from thoughtfully designed ranches and 2-story homes, each featuring inviting covered front porches that set the stage for warm welcomes and outdoor relaxation. Serviced by the highly rated Huntley School District 158 and right near the booming Rt. 47 corridor-putting shopping, dining, and conveniences just steps from your door. Taking presale reservations now-be a part of Huntley's newest community: Stillwell Grove!
LOT 1 Ryann Rd Huntley, IL 60142