
(If you do not have an agent and work directly with the listing agent)
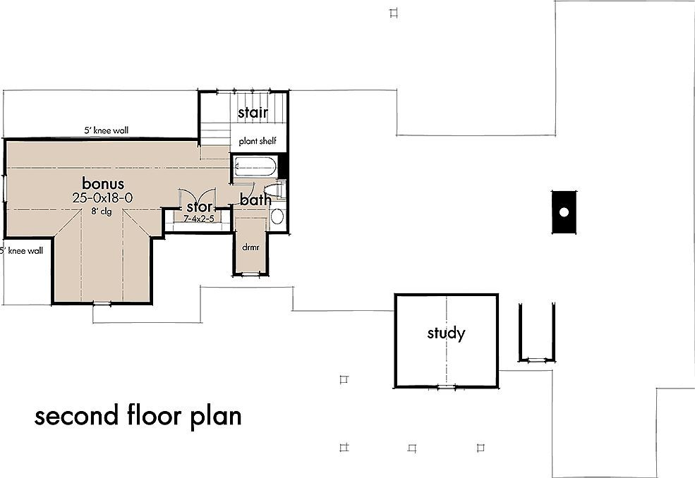
Text 270-303-6991 for more info on the Casa Rojas plan. a stunning house design that offers a spacious main level with Upon entering the Casa Rojas Plan, you'll be greeted by an inviting open floor plan, ideal for entertaining guests or spending time with family. The main level features a large living room, a dining area, and a modern kitchen equipped with all the latest amenities. This house plan includes three+ bedrooms, providing ample space for a growing family or visiting guests. The primary bedroom is a true oasis, complete with a luxurious ensuite bathroom and a walk-in closet. The two additional bedrooms are situated on the opposite side of the home, providing privacy and separation. With two full baths and one half bath, there's no need to worry about sharing bathrooms. The attached two-car garage provides plenty of space for parking and storage. Overall, this stunning house plan offers a perfect combination of style, comfort, and functionality. Don't miss out on the opportunity to own your dream home - the Casa Rojas Plan has everything you need and more!
Casa Rojas Plan, The Summit Bowling Green, KY 42104