
(If you do not have an agent and work directly with the listing agent)
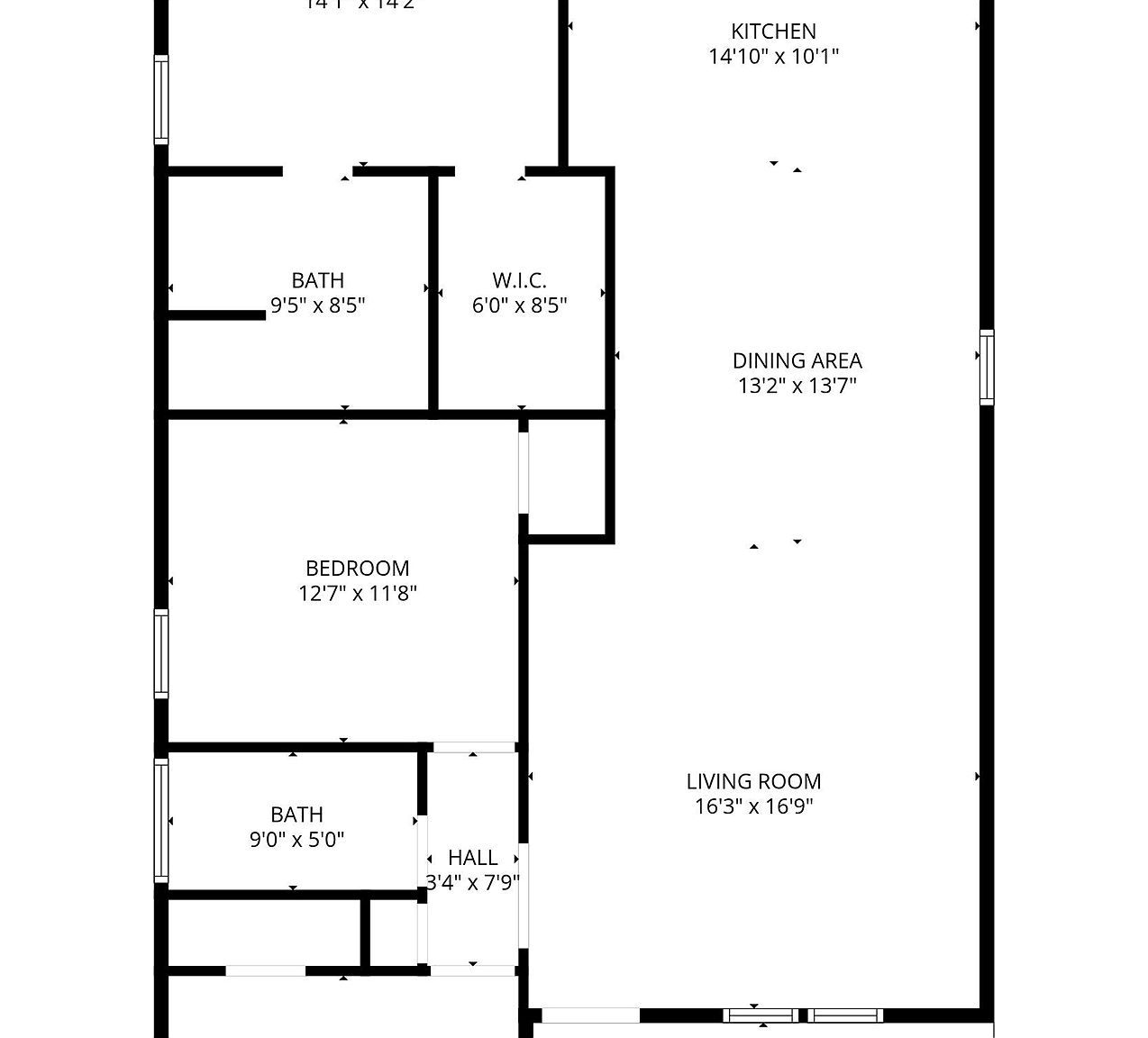
NEW CONSTRUCTION IN COOPER YOUNG. This brand new 3 bedroom, 2 bath home offers the perfect blend of style, comfort, and modern design in a thoughtfully planned appx 1,500 square feet. The open floor plan makes entertaining easy, with a bright kitchen featuring sleek quartz countertops and plenty of space to gather. Beautifully tiled bathrooms add a touch of luxury. And the spacious primary suite is the perfect retreat! Relax on the inviting front porch, or unwind on the back porch while the kids or the pets enjoy the fully-fenced backyard. With quality craftsmanship and a one-year builder warranty, you can move in with confidence and enjoy your new home for years to come! Schedule your tour today!
947 Seattle St Memphis, TN 38114