
(If you do not have an agent and work directly with the listing agent)
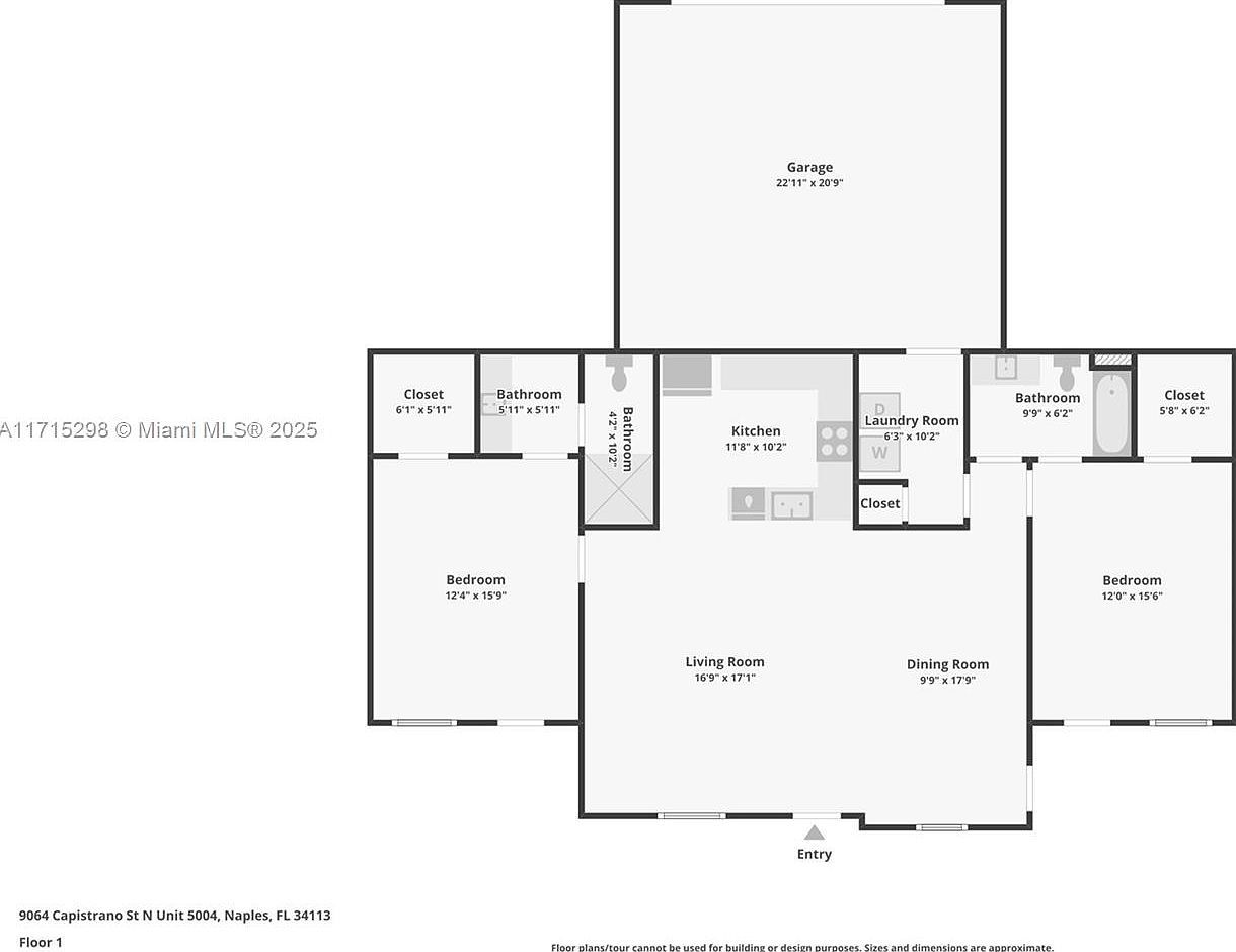
This welcoming two bedroom/2 bathroom/2 car garage is ready for a new owner. Furniture is included in the sale, so once you are approved, you can move right in and start enjoying life at Ole in Lely Resort. The master bedroom has a walk-in closet and a spacious shower. The second bedroom on the opposite side is ideal for added privacy. It has a walk-in closet and a tub/shower comboa??separate laundry room. The Current owner lives out of the country and has only used the property for a few weeks in previous years. Easy to show. Call for more information
9064 Capistrano St N UNIT 5004 Naples, FL 34113