
(If you do not have an agent and work directly with the listing agent)
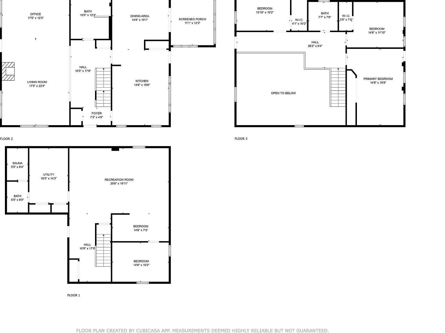
Escape to Serene Lakefront Living Welcome to this extraordinary log home sanctuary, an embodiment of tranquility and luxury nestled on the shores of Lake Amnicon. This unique property offers an unmatched lifestyle for those seeking peace and a genuine connection to nature. The home features over 4,200 sq ft of living space with 3+ spacious bedrooms and 2.5 baths, perfect for relaxation or hosting guests. Set on a sprawling 25.3-acre expanse, enjoy the beauty of nature with mature hardwood trees and level land leading to the lake. Boasting 1,445 feet of stunning Lake Amnicon frontage, seize the opportunity for boating, fishing, or the simple pleasure of a lakeside sunset. Crafted with large, round logs, the home's robust architecture is enhanced by vaulted ceilings in the living room, creating an open and airy feel. The centerpiece is a custom granite center island, ideal for culinary creations or casual gatherings. Benefit from geothermal heat, blending eco-friendly innovation with traditional charm. The outdoor retreat includes a guest cabin and a cedar screen house, offering extra space for visitors and new experiences. The flower and rock garden, complemented by a self-venting greenhouse, are perfect for green thumbs or those who appreciate a touch of greenery. The expansive wooden deck is ideal for outdoor entertaining, with a hot tub for relaxing after a long day. With a three-car garage, one-car garage, and a Boat/RV building, therea??s ample space for storing vehicles and outdoor equipment. A looped driveway provides convenience and enhances the propertya??s majestic appeal. This propertya??s position offers complete privacy alongside the captivating expanse of Lake Amnicon. The serene environment is perfect for those who cherish solitude while still needing convenient access to Superiora??s amenities. Proximity to local trails and recreational opportunities makes this home a haven for outdoor enthusiasts year-round. Are you ready to explore this idyllic retreat and make it your own?
8280 S County Road A Superior, WI 54880