
(If you do not have an agent and work directly with the listing agent)
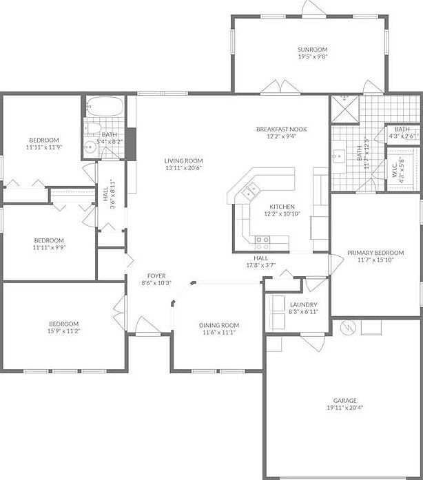
Discover the perfect blend of comfort and elegance in this stunning 4-bedroom, 2-bathroom home located in the Bentley Woods neighborhood in the heart of highly sought after Oviedo. Boasting a spacious Great Room, a modern open kitchen with granite countertops and chic tile backsplash, and a versatile bonus room for your lifestyle needs, this home is designed for both relaxation and entertaining. The Master Suite features high ceilings, a walk-in closet, and a beautifully remodeled bath, while wood and ceramic tile flooring add style throughout. Outside, enjoy the Florida sunshine in your expansive, fenced backyard a?? perfect for gatherings or peaceful evenings. Conveniently located near top-rated Seminole County schools, shopping, dining, and major highways, this gem is a rare find. Schedule your tour today!
684 Yorkshire Dr Oviedo, FL 32765