
(If you do not have an agent and work directly with the listing agent)
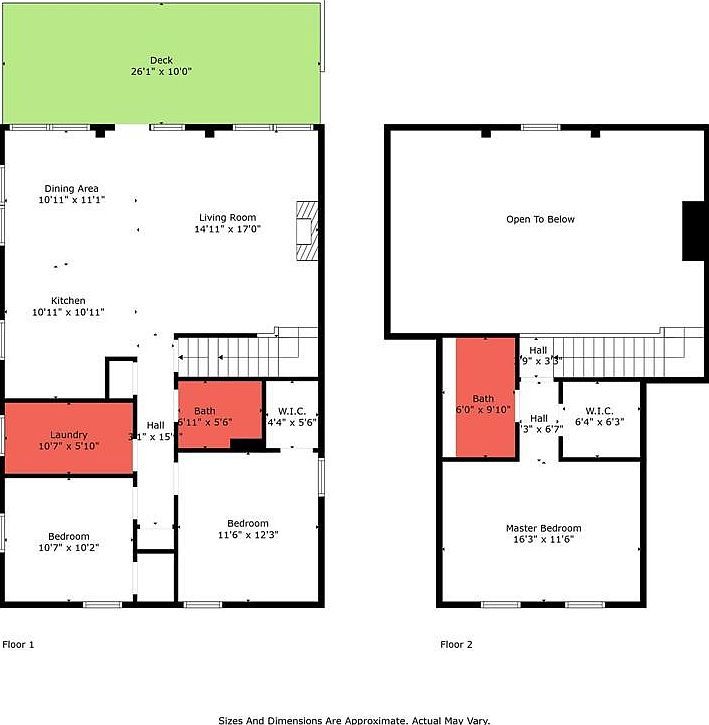
Charming Beach House in Bear Point " Orange Beach, AL.Welcome to your perfect coastal retreat! This bright and airy beach house offers a relaxed, serene atmosphere just minutes from the Gulf. Located in the desirable Bear Point community, you'll enjoy easy access to all the waterfront amenities this area has to offer.Key Features:Spacious, open-concept living with plenty of natural light,3 cozy bedrooms and 2 full bathrooms,fully furnished option available for turnkey convenience,open kitchen, perfect for entertaining,balcony porch for relaxing and taking in the breeze!Community Amenities available with voluntary HOA membership:Boat Launch: Direct access to the water for all your boating adventures.Private Beach Area on Perdido Bay: Enjoy tranquil, less-crowded beach days with a short walk or ride over by golf cart.Fishing Pier: Ideal spot for fishing or watching the sunset.OSO Restaurant & Marina: A local favorite for dining and docking.Whether you're seeking a weekend getaway or a full-time coastal lifestyle, this home has everything you need to relax and unwind. Don't miss out on this incredible opportunity to own a piece of paradise in Orange Beach, Alabama. Buyer to verify all information during due diligence.
5704 Armadillo Ave Orange Beach, AL 36561