
(If you do not have an agent and work directly with the listing agent)
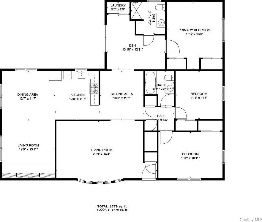
ONE LEVEL LIVING IN THE HEART OF RED OAKS MILL! Meticulously maintained Ranch with tasteful updates throughout. Home features almost 1900 SQFT of above ground living space, 3 bedrooms and 2 full baths. Oak floors throughout, new geo-thermal system to allow for the most efficient form of heating and cooling, liquid propane fired Navien on demand system for hot water, updated kitchen with SS appliances and granite countertops and wood burning fireplace in the family room. Updated electric and Generac whole-house generator! Beautiful in-ground pool with newly poured concrete surround, new liner, fenced in area, bocce ball court and plenty of space for BBQing and entertaining! Exterior features mature landscaping, oversized storage shed and solar panels that make your electric bill obsolete, this is a net zero house! Excellent location, minutes to the Taconic PKWY, route 9, close to schools, shopping, culinary grade restaurants and more! Come see all that the Hudson Valley has to offer, PRICED TO SELL!
55 Kinry Rd Poughkeepsie, NY 12603