
(If you do not have an agent and work directly with the listing agent)
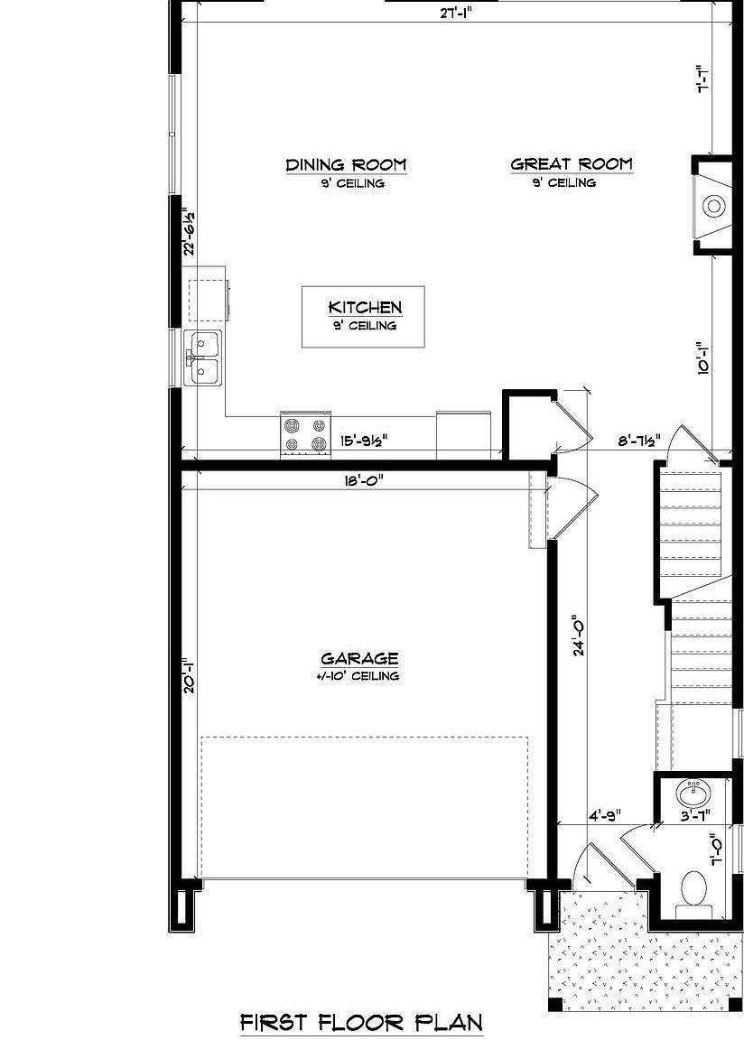
Brand new construction available in Doylestown Township by Tarry Builders! 45 Bedford Avenue is a 1940 sq ft home sitting on a 0.18-acre wooded lot with an attached two-car garage. The covered front door provides space for seating to watch nature outdoors. Inside, an exclusive interior trim package is available featuring oversized baseboards and trim moldings, and 9 feet ceilings. As you head down the hall past the powder room and oak staircase, youa??ll find the open-concept living area featuring a great room with a gas fireplace, the kitchen with a granite island for additional counter space and seating and the dining room. A sliding door opens to a small deck to the wooded backyard. Upstairs the main bedroom has a walk-in closet, stall shower and double sink vanity. Two additional bedrooms share the hall bath, both with walk-in closets. The laundry room rounds out the upper level. There is an option to finish the basement or leave it unfinished for storage. There is a bonus space over the garage to purpose as you like. Tentative delivery is 12 months from contract. This home is located off Edison Furlong Road, close to commuter routes, shopping, and Doylestown. See MLS # PABU2050470 for other neighboring new construction home by Tarry Builders.
45 Bedford Ave Doylestown, PA 18901