
(If you do not have an agent and work directly with the listing agent)
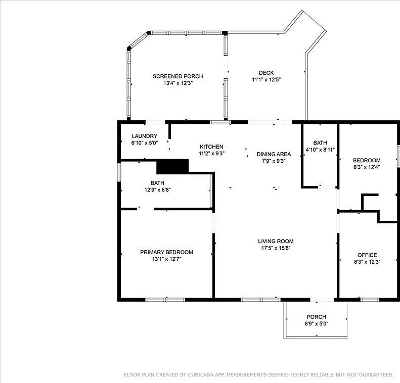
FULLY Furnished 2 bedroom/2 bathroom WITH OFFICE also can be used as a 3rd bedroom home located in the community of Fowlers Bluff. This home is only a block away from the local Treasure Camp Restaurant and one block away from the Fowlers Bluff public boat ramp for some of the best freshwater fishing in the great Suwannee River. A short ride to our very own little island town of Cedar Key and the Gulf of America. This home is in immaculate condition, barely lived in .You will enter a gorgeous bright open floor plan with a spacious living room, dining room and open kitchen with tons of cabinetry. You have 2 bedrooms/2 bathrooms each ample size along with an additional room that can be used as a bedroom , current use as an office/craftroom. Second bedroom has a Murphy bed. The yard is an outdoor lovers dream. A fully fenced yard loaded with muscadine grape vines, a beautiful front porch. Out back you have a fully screened patio perfect for enjoying Floridas all year warm temps, a back deck perfect for enjoying the hot tub, entertaining and grilling. A 2 car detached carport with workshop attached. This property is the perfect forever home, seasonal home OR would make an amazing short term rental like air BNB or Vrbo. Call today for YOUR tour this gem wont last long!
4356 NW 152nd Ct Chiefland, FL 32626