
(If you do not have an agent and work directly with the listing agent)
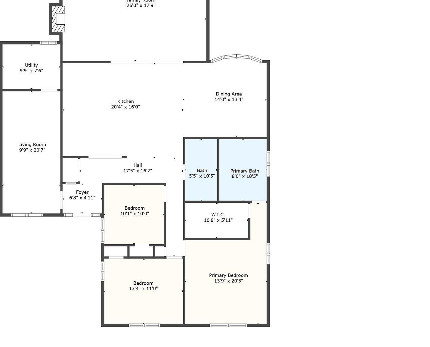
Welcome to 3449 Weidner Avenuea??an expanded waterfront ranch nestled in the heart of Oceanside. This beautifully maintained home offers the perfect balance of comfort and coastal living, featuring a private backyard oasis with pavers, a Semi in-ground pool, and an outdoor kitchen with a natural gas grill and wood-fired brick pizza ovena??ideal for entertaining. Inside, youa??ll find a spacious layout with updated porcelain and ceramic flooring, granite countertops, and high hat lighting throughout. The kitchen and bathrooms have been thoughtfully renovated, with elegant marble finishes in the primary bath. Enjoy year-round comfort with central air, baseboard heating, extra heating/cooling units, and a cozy gas fireplace in the extended living space. a 200-amp electric panel, and a fully powered gazebo. Located on a wide canal with well-maintained bulkheads, this property combines serene water views with modern amenities.
3449 Weidner Ave Oceanside, NY 11572