
(If you do not have an agent and work directly with the listing agent)
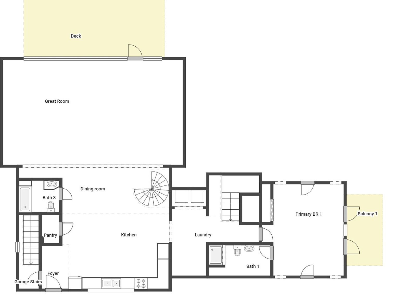
Take a 3D Tour or Enjoy a Video Walkthrough 24/7! This striking double A-Frame, with iconic Howard Johnson's orange steel roof shingles, is a one-of-a-kind architectural showplace and retreat set on 1.51 private acres surrounded by the 32-acre Highland Pond Preserve. The pond dam has been removed, returning it to its natural state of meadow and stream. Over $300,000 in thoughtful renovations have been completed by the Seller, including creating a stunning 2nd-floor Primary Suite 2 with spa bath, heated tile floor, towel warmer, luxury shower area with rain shower head & body sprays, and oversized 2-person tub. Marvin Integrity windows, custom built-ins, spray foam insulation, and a Mitsubishi ductless system. The 3,853 sq ft total living area layout offers 3 BRs (includes a 1st floor Primary Suite), 2 Offices (one a 4th BR), 4 Full Baths, and a 4-Car tandem Garage with plumbing for a 5th bath. Inside, soaring ceilings, dramatic tile floors, walls of glass, and a central wood-burning fireplace bring the outdoors in. Upgrades include a deepened well, a new Trane HVAC A/C condenser to maximize comfort and energy efficiency, a 22kW whole-house generator, siding/trim repairs, LED lighting, spray-foamed basement, and more. Steps to the Blue Trail, this home is perfect for Buyers seeking privacy, style, and modern upgrades near Middletown's amenities and 3 minutes from I-91. Schedule your private showing TODAY!
301 Bell St Middletown, CT 06457