
(If you do not have an agent and work directly with the listing agent)
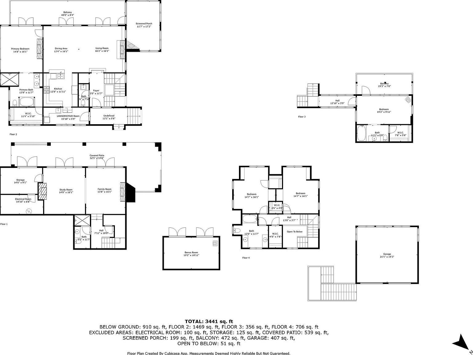
This luxurious lakefront cottage is truly captivating, featuring 4 bedrooms and 5 bathrooms that showcase architectural brilliance and unparalleled style. With 7 fireplaces throughout, the home offers a warm and inviting atmosphere year-round. Delightful finishes in every corner reflect timeless charm, while the covered porch provides breathtaking views and a screened-in dining area complete with a fireplace. An additional bonus room below the guest wing is perfect for a gym, theater, or hobby room. Discover extra storage through a secret passageway. Enjoy life at the lake with 99 feet of prime Whitefish Lake waterfront, a private dock, and a cozy firepit. Sold turn-key! Call Bethany Johnson 406-607-0871, Taysha Garwood 406-871-5170, or your real estate professional.
2802 Rest Haven Dr Whitefish, MT 59937