
(If you do not have an agent and work directly with the listing agent)
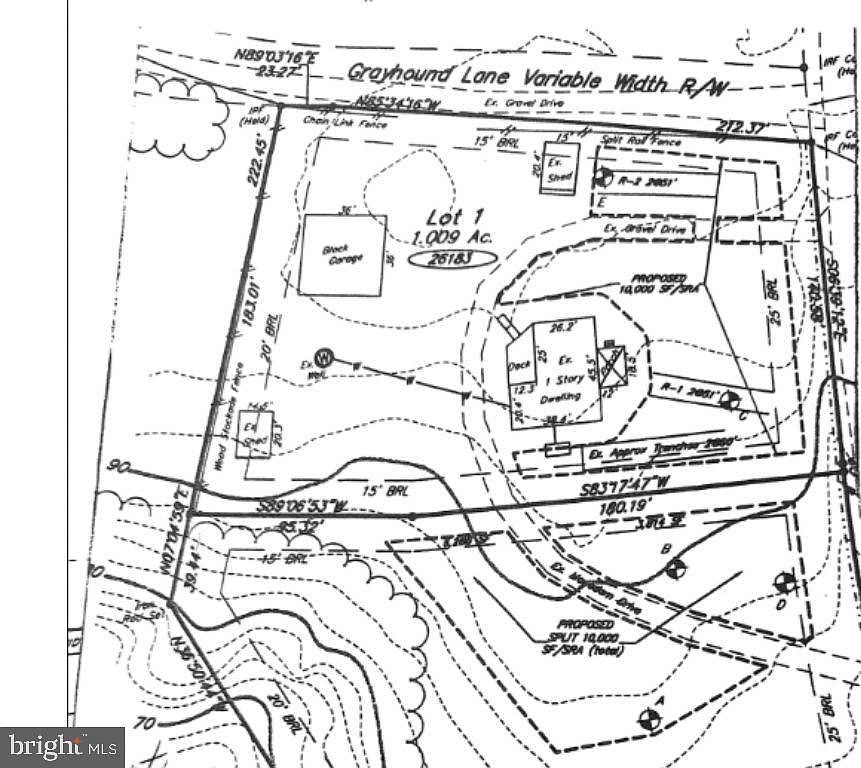
Discover the perfect opportunity to build your dream home on this 1-acre buildable lot at 26181 S Sandsgate Rd, Mechanicsville, MD. This flat lot comes with recorded percs, making it ready for development. Enjoy the privacy of a spacious property while still being conveniently located near local amenities. Dona??t miss out on this prime piece of land!
26181 S Sandgates Rd, Mechanicsville, MD, 20659