
(If you do not have an agent and work directly with the listing agent)
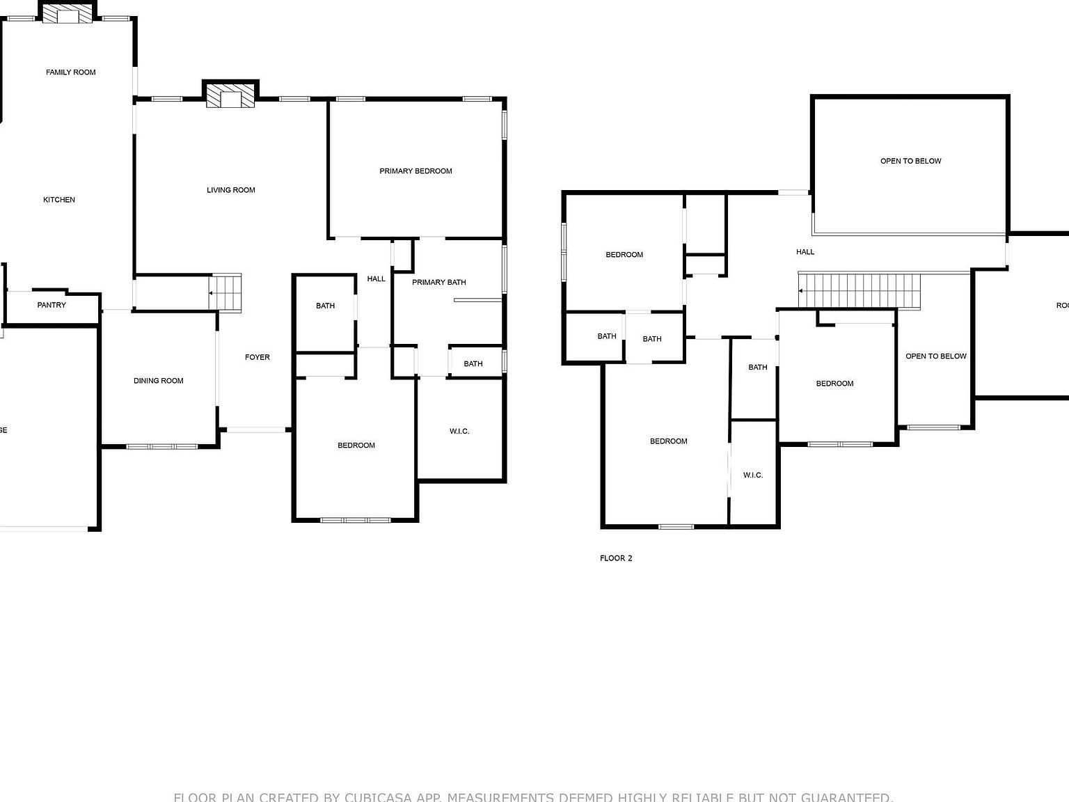
Welcome to your dream home in the highly sought-after Drake Forest community! This brand-new construction offers over 3,700 square feet of beautifully crafted living space, designed with both function and comfort in mind. The exterior features a striking combination of concrete fiber board, stone, and brick, offering timeless curb appeal. Inside, you'll find 5 spacious bedrooms plus a bonus room and 4 full bathsa??2 on the main level and 2 upstairs. The open-concept layout includes a vaulted family room with a cozy gas log fireplace, an expansive kitchen with abundant cabinetry, an island, and a breakfast room. Enjoy more formal gatherings in the separate dining room or relax in the inviting keeping room just off the kitchen. The main-level primary suite showcases a specialty ceiling, spa tub, separate tiled shower with bench, and dual vanities. A second bedroom on the main includes an en suite bath with a tiled shower. Upstairs, you'll find three additional bedrooms and two full baths. Hardwood floors run throughout the main level (tile in wet areas). Additional features include a screened porch, open deck, double door, walk-in storage area with covered patio, gas tankless water heater, gas heat on main, and sodded front and back yardsa??all conveniently located near East Brainerd's best amenities.
2212 Peterson Dr Chattanooga, TN 37421