
(If you do not have an agent and work directly with the listing agent)
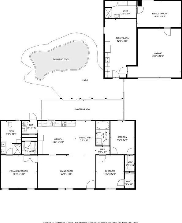
Resort-style living on a rare 1/3-acre lot in the heart of Bullhead City! This move-in ready 3 bedroom, 2.5 bathroom home offers approximately 1,900 sq ft of total living space. The main home includes 3 bedrooms and 2 full bathrooms, plus a convenient half bath with dual access from the kitchen and backyard perfect for pool days so guests don t track water through the house. Inside, you ll find a comfortable open layout with a generous living room, dining area, and a well-appointed kitchen. The detached garage features two finished bonus rooms and a separate 3/4 bathroom, all with central air ideal for guests, an office, gym, or hobby space. Step outside to your own private retreat: a heated pool and spa, spacious patio areas, mature landscaping, and plenty of room to relax or entertain. The oversized 1/3-acre lot provides abundant parking for vehicles, RVs, trailers, and toys, and NO HOA gives you the freedom to use your property as you choose. All of this in a prime Bullhead City location close to shopping, medical services, schools, and just minutes from the Colorado River and Laughlin casinos. Whether full-time, part-time, or investment 1996 Ramar Rd delivers the space, parking, and amenities you won t easily find in one package.
1996 Ramar Rd Bullhead City, AZ 86442