
(If you do not have an agent and work directly with the listing agent)
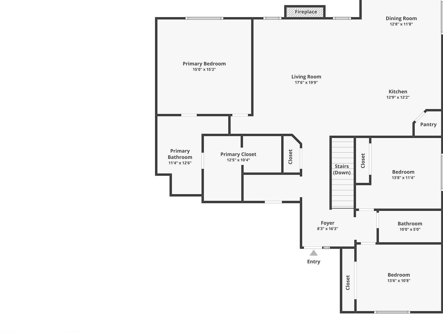
Welcome to Fountain Hills in Pella! Step inside this stunning 2024-built Destiny Homes Designer Series Legacy plan, a customized executive ranch that perfectly blends style and functionality. This beautiful home features 5 bedrooms and 3 bath areas, offering approximately 1,800 sq. ft. of exquisite living space on the main level, along with an additional 1,179 sq. ft. finished in the lower level. Valuable upgrades include LVP flooring throughout the whole home and a Geothermal HVAC Unit for efficient energy. The main level boasts a spacious great room with tray ceilings and huge windows that flood the space with natural light, complemented by a cozy fireplace. You'll find three well-appointed bedrooms and a convenient mudroom, perfect for keeping your living space organized. The gourmet kitchen is a chef's dream, featuring elegant quartz countertops, an oversized center island, stainless steel appliances, and a walk-in corner pantry. Enjoy seamless access to the backyard through sliding doors off the bumped-out dining area, ideal for outdoor entertaining. Retreat to the spacious ensuite, which includes a luxurious walk-in tile shower and a generous 10 ft. vanity. The finished basement offers a large family room, two additional bedrooms, a full bath, and a wet bar, providing ample space for entertaining family and overnight guests, along with plenty of storage options. Home includes furnishings, please ask your Realtor for the full list. Schedule a showing today!
1800 Lakeview Dr Pella, IA 50219