
(If you do not have an agent and work directly with the listing agent)
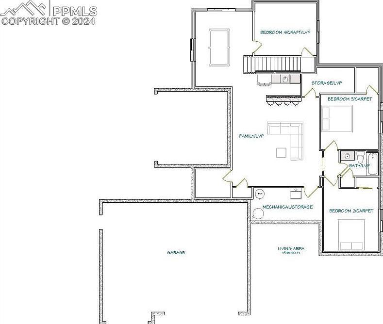
To be Built Home. Welcome to the epitome of luxury living in the prestigious Winsome Community! Situated on a sprawling 2.5-acre lot, this exquisite ranch plan with a finished basement offers an unparalleled blend of elegance and comfort. Spanning across 5 spacious bedrooms and 3 lavish bathrooms, this home boasts an expansive floor plan designed to accommodate your every need. As you enter, you're greeted by the grandeur of solid surface countertops adorning the gourmet kitchen, where culinary delights come to life amidst top-of-the-line appliances and custom cabinetry. Step into the heart of entertainment in the sprawling rear covered patio, where gatherings are elevated to new heights. Whether it's hosting intimate soirA(C)es or lavish affairs, this outdoor oasis provides the perfect setting for memorable moments under the open sky. Indulge in leisure and recreation within the confines of your own home in the generously sized rec room and game area, complete with a sleek wet bar for effortless entertaining. From lively game nights to cozy movie marathons, every occasion is enhanced by the luxurious amenities this home has to offer. For those with a penchant for automotive excellence, the attached 3-car garage provides ample space for your prized vehicles, ensuring both convenience and security. Experience the pinnacle of luxury living in the Winsome Community, where this extraordinary residence awaits to redefine your lifestyle. Seize this rare opportunity to call this magnificent property your own and embark on a journey of unparalleled refinement and sophistication.
16690 Early Light Dr Colorado Springs, CO 80908