
(If you do not have an agent and work directly with the listing agent)
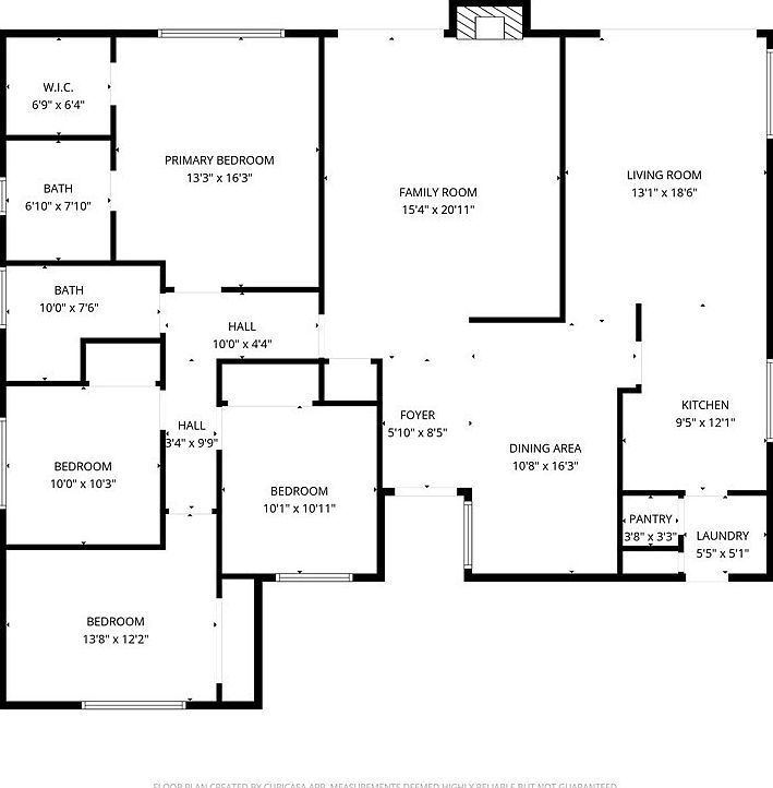
Westminster home near the Huntington Beach city line, offering a coastal adjacent location with strong everyday convenience. Priced to reflect its condition, this single story property delivers a value opportunity for move up buyers ready to step out of condo living and into a large, single story, single family home, and for investors seeking cosmetic upside in a high demand area. Inside, the floorplan provides both a main living room and a separate family room off the kitchen, creating flexible spaces for everyday living, entertaining, or a work from home setup. The living room is open and bright with sliding door access to the backyard, bringing in natural light and creating an easy indoor outdoor connection and a lovely fireplace. The kitchen provides generous counter space and storage, functional today with clear potential for future updates. Just off the kitchen, the family room becomes the natural gathering space and includes an additional sliding door to the backyard, expanding the sense of space and flow. Down the hallway is a full sized hall bathroom conveniently located for guests and the secondary bedrooms. Multiple bedrooms offer versatility for guests, home office, hobbies, or a growing household. The primary suite is set apart for privacy and includes an ensuite bathroom and a walk in closet. The backyard offers a private outdoor setting with access from both the living room and family room, making it a true extension of the home and a great canvas for creating your ideal outdoor space. Additional highlights include a dedicated laundry room and direct access to a two car garage. Conveniently located near Old World Village, Bella Terra, Costco, and local parks including Greer Park and College Park, with quick access to shopping, dining, entertainment, and major freeways. With dual pane windows and sliding doors, a versatile and large floor plan, this home offers exceptional value and opportunity.
15491 Vassar St Westminster, CA 92683