
(If you do not have an agent and work directly with the listing agent)
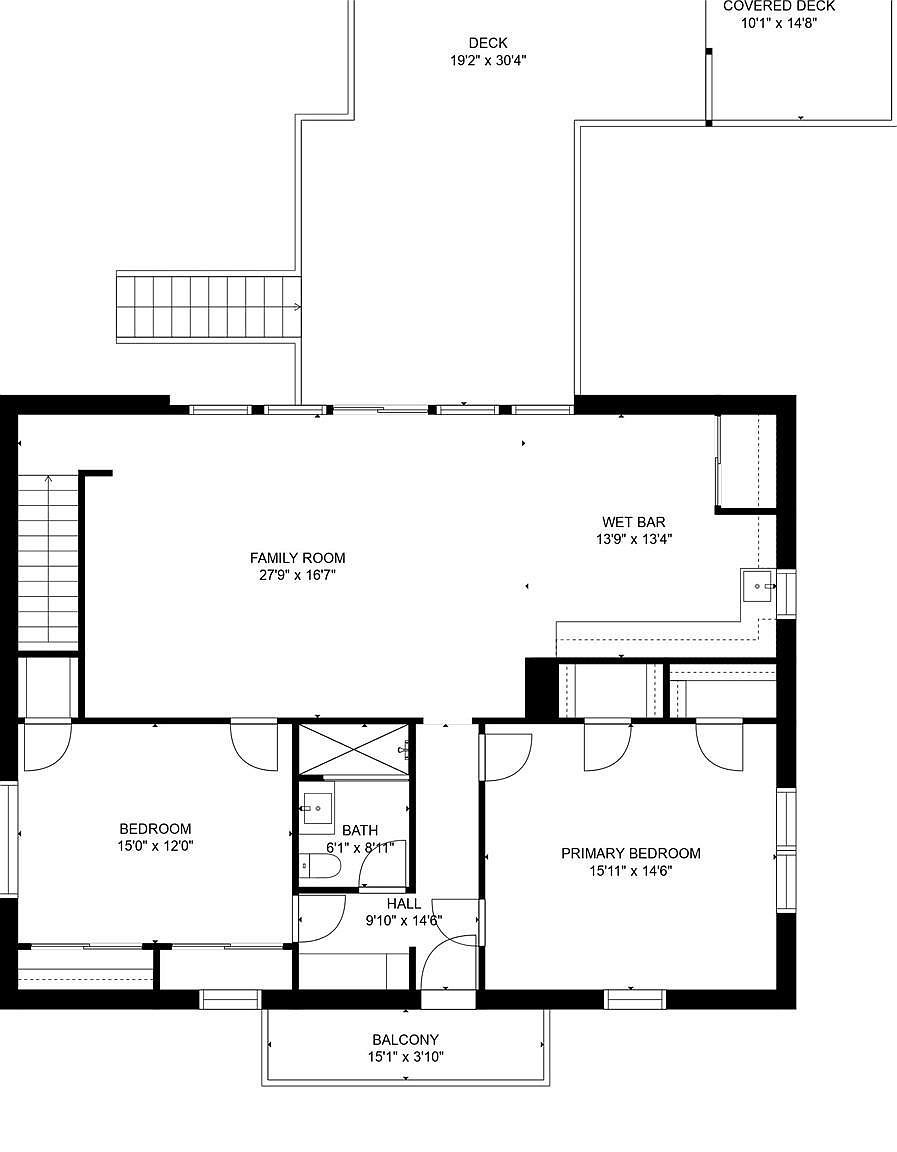
Welcome to your dream coastal home, a spacious waterfront property located in the famous Tiki Island! Step into this recently remodeled entirely, easy to maintain home, built & remodeled to endure the abrasive salt breeze. Featuring 3 bedrooms, 2 full baths, 2 living areas, 2 kitchen, 2 patios overlooking the water, spacious concrete parking corner lot, a boat dock & lift, dual AC recently replaced, remodeled kitchen and bathrooms with large granite slabs & frameless glass, new patio doors & windows, wood look tile flooring on the 1st floor engineered wood on the entire 2nd floor. As you ascend to the 2nd floor, you 'll find another living area overlooking an oversized patio with unobstructed waterview! Both living room & both kitchen overlooking the boat dock and enchanting waterview! Step outside to watch the sunset over the gleaming water with a glass of wine!
1407 Tiki Dr Tiki Island, TX 77554