
(If you do not have an agent and work directly with the listing agent)
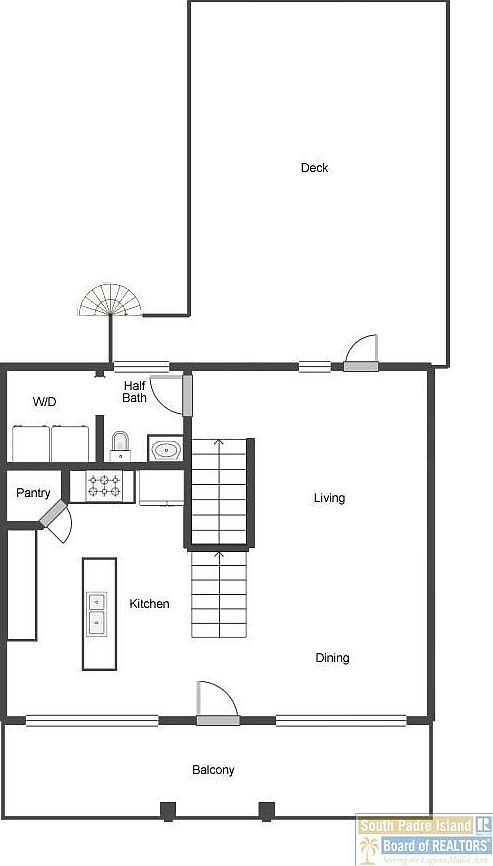
Virtual Tours & More - bit.ly/1403gulf Las Sirenas, a Spanish-inspired luxury beach house - where you can have your toes in the sand one moment and be shopping, dining, or enjoying island nightlife the next! This home is perfectly positioned approx. 150 yards from a beach entrance, offering easy access and sweeping coastal views. With its bright, open design and breezy balconies, it perfectly captures the relaxed charm of seaside living. This stunning hacienda offers 5 spacious bedrooms, 4.5 baths, an ideal blend of luxury, comfort, & charm. Carefully curated touches & artisan details set a warm, refined tone throughout. Enjoy 2 living areas, a full kitchen plus a lower-level kitchenette, & a spectacular outdoor kitchen cabana with bar seating, perfect for relaxed gatherings by the private heated/chilled pool & spa. Rarely does an SPI home of this caliber become available. Seize the opportunity to experience island life at its finest a?? walkable, vibrant, unique, and unforgettable.
1403 Gulf Blvd South Padre Island, TX 78597