
(If you do not have an agent and work directly with the listing agent)
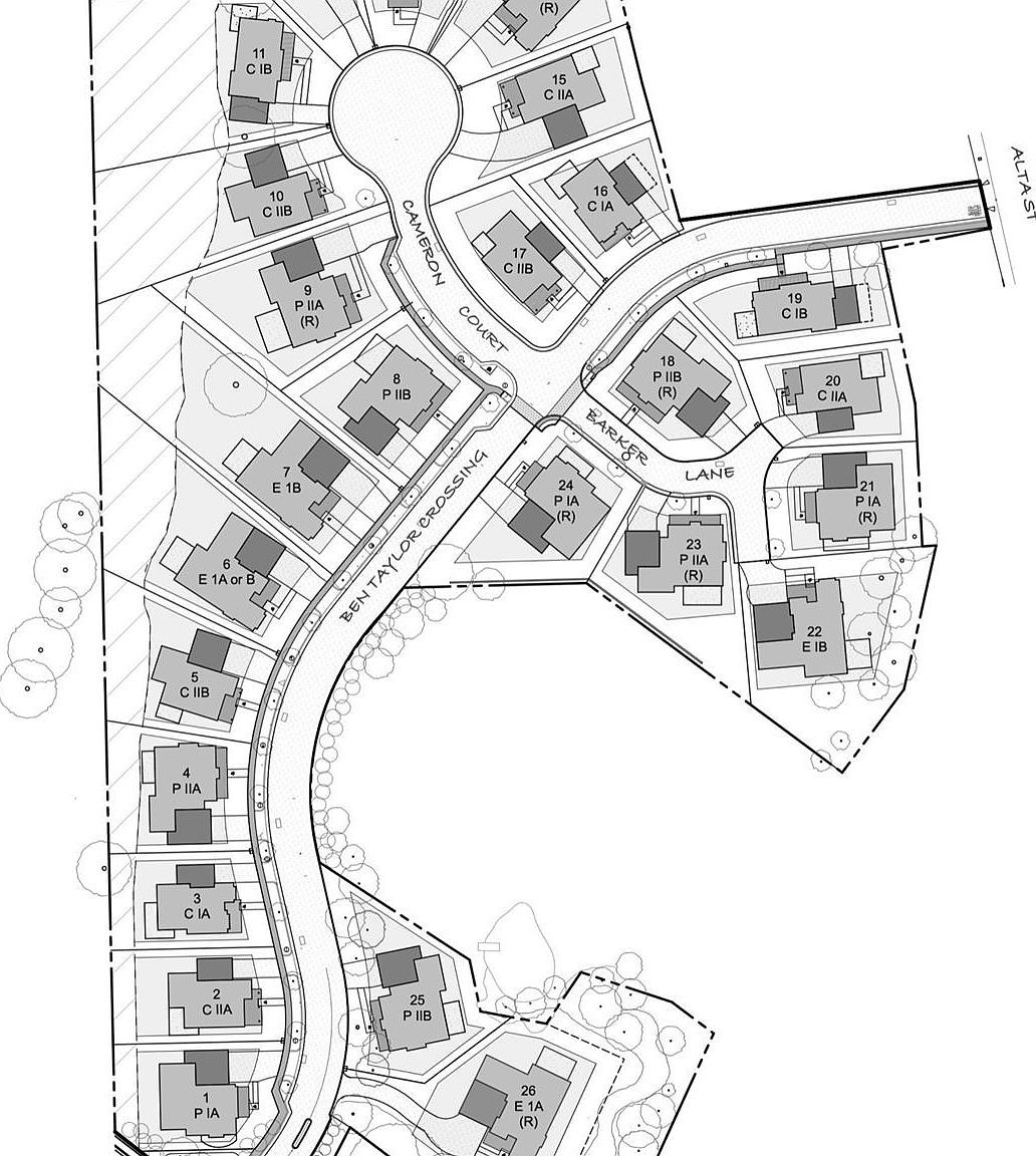
NOT BUILT YET. appx 8 month build time. Walk to town living at Gilded Springs. 26 New Architectural Homes to fit your lifestyle! Unmatched Home Designs. Perfectly situated within an 8 minute walk to charming historic Downtown Grass Valley. Participate in a more sustainable lifestyle by living close to shopping, dining, entertainment and community events. Site development and infrastructure is complete. All new homes will meet the new California Energy Codes. Construction and Design will focus on energy efficiency, passive and active solar, fire resistant materials, Smart home control & LED lighting. Opportunity to upgrade kitchens, bathrooms, alternate floor plans & interior finish levels. Gas fireplace is an optional upgrade. RESERVE YOUR NEW HOME NOW!
124 Ben Taylor Xing Grass Valley, CA 95945