
(If you do not have an agent and work directly with the listing agent)
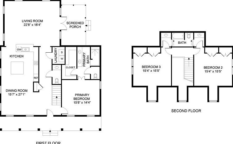
New construction in the heart of the Pier Village on St Simons Island. 1035 Village Oaks is thoughtfully laid out, and provides the ideal location for enjoying all the Island has to offer. An inviting front porch leads in to an open kitchen and living area, additionally a rear screened porch allows the perfect setting for year round enjoyment of the outdoor space. The primary bedroom is located on the main level, features a large bathroom with walk in closet, double vanity and a large walk in shower. Upstairs are 2 additional bedroom that share a jack and Jill bath set up.
1035 Village Oaks Lane St Simons Island, GA 31522