
(If you do not have an agent and work directly with the listing agent)
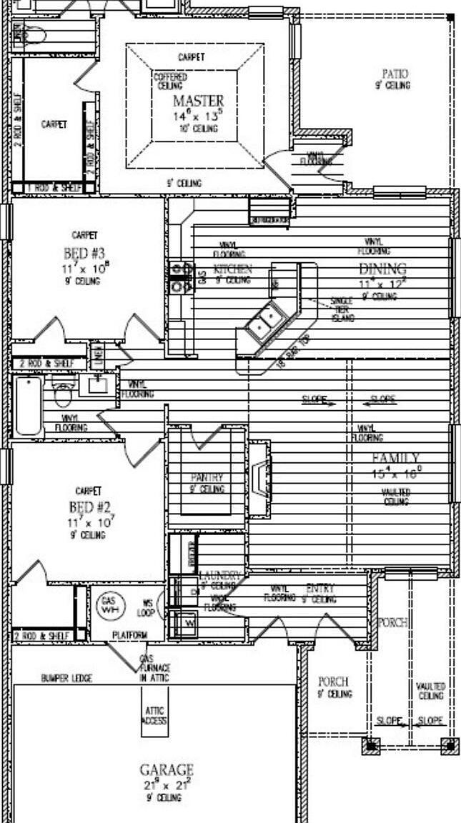
Welcome to a spacious and beautiful floor plan offered by Roten Homes in the new and upcoming neighborhood, BURGAMY PARK NORTH! This home has 3 beds and 2 baths, with a spacious and open floor plan. Make your appointment today and come see what Roten Homes has to offer! 10K in flex cash offered.
1003 Quincy Ave Lubbock, TX 79416