
(If you do not have an agent and work directly with the listing agent)
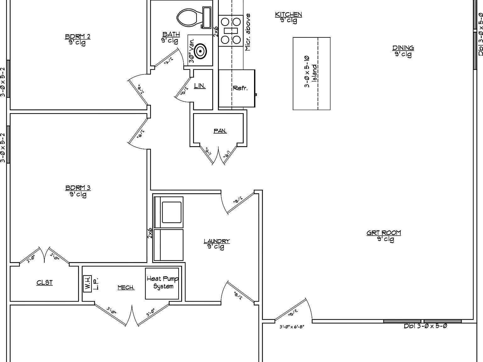
Plan B is a 3-bedroom, 2-bath detached patio home designed for easy living with no steps and an efficient, open-concept layout. Located in Oakwood Place at Miller Woods, this home offers the privacy of a standalone residence with the low-maintenance benefits of an HOA that handles lawn care, snow removal, and exterior upkeep. The exterior will feature primarily brick construction, offering lasting beauty and low upkeep. Buyers can customize their home with selections for brick color, vinyl siding, flooring, paint, countertops, bathroom tile, and morea??including options to add premium upgrades to suit their lifestyle. Inside, you'll enjoy 8-foot ceilings, a spacious living room, and a large kitchen with a walk-in pantry and center island for entertaining or everyday use. The primary suite features a double vanity, a 4-foot walk-in shower, and a storm shelter located in the walk-in closet for safety and peace of mind. Two additional bedrooms and a full bath provide flexible space for guests or work-from-home needs. Step outside to a covered front porch and rear patio, and make the most of the attached 2-car garage for vehicles, storage, or hobbies. Located in Brandenburg, KY, Plan B offers quality, comfort, and simplicity in a quiet, well-maintained communitya??perfect for those ready to embrace low-maintenance, one-level living.
Patio Home B Plan, Miller Woods Brandenburg, KY 40108