
(If you do not have an agent and work directly with the listing agent)
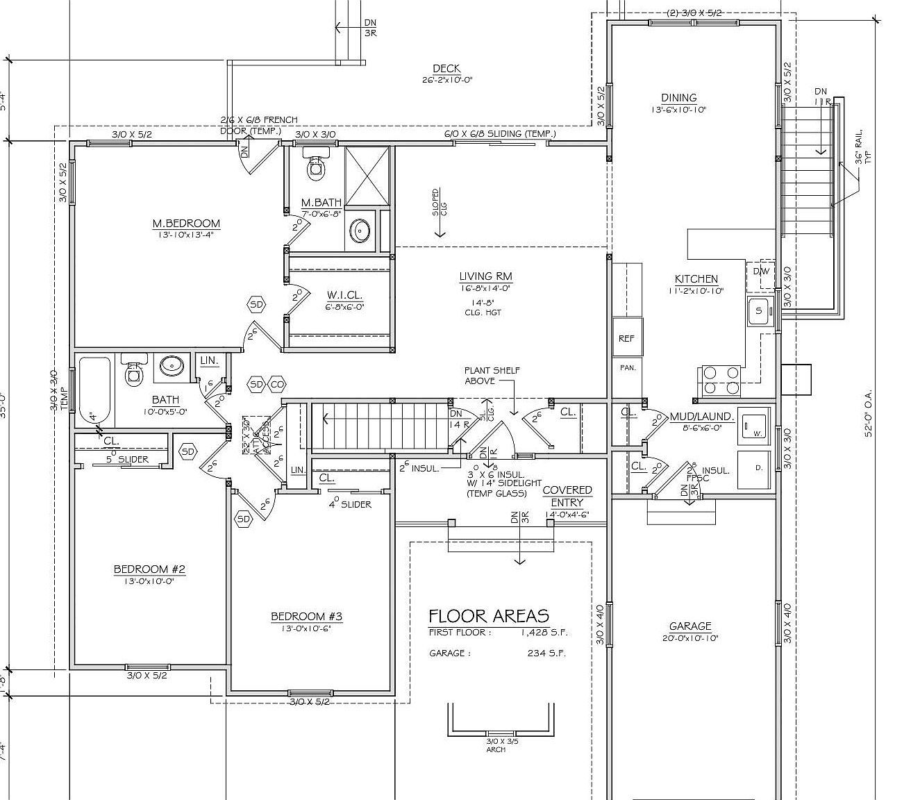
New Construction Aca?!a?? To Be Built - The Terra Collection at The Estates at Rocky Point Welcome to The Terra Hudson Ranch, a beautifully designed one-level ranch home by Long IslandAca?!a?cs premier builder, Terra Construction Group, located in the desirable Estates at Rocky Point. This thoughtfully crafted home offers approximately 1,428 square feet of comfortable living space, featuring 3 bedrooms, 2 full bathrooms, a 1-car garage, partial basement, mudroom/laundry room, and soaring ceilings that enhance the open feel of the home. The bright and inviting layout showcases a dramatic living room with 14-foot ceilings, creating a spacious and airy focal point for the home. Elegant red oak or engineered white oak flooring, custom interior moldings, and an open-concept design seamlessly connect the living room, dining area, and kitchenAca?!a??perfect for both everyday living and entertaining. The designer kitchen features shaker-style maple cabinetry with 42Aca?!A? wall cabinets, quartz countertops, ceramic tile backsplash, stainless steel sink with Kohler or Delta pull-out faucet, and a premium stainless appliance package including a 36Aca?!A? refrigerator with ice and water, 30Aca?!A? gas range with stainless canopy hood, built-in microwave, and stainless dishwasher. The primary suite offers a private retreat featuring a custom tiled shower with glass door, ceramic tile floors, custom maple vanity with granite or quartz countertop, and Kohler or Delta fixtures. Two additional bedrooms provide comfortable space for guests, or a home office. Additional conveniences include a dedicated mudroom with laundry area, providing practical everyday functionality directly off the garage. Built with quality and efficiency in mind, the home includes central air conditioning, energy-efficient insulation, PEX plumbing, and high-quality construction throughout. Exterior highlights include maintenance-free vinyl siding, 30-year architectural roof shingles, vinyl double-hung windows, asphalt driveway with paver border and walkway, underground utilities, seeded lawn, and an in-ground sprinkler system (up to 10 zones). The home is also solar-ready for future energy efficiency. Enjoy the ease of one-floor living with dramatic ceiling heights, modern finishes, and quality craftsmanship in this exciting new community.
LOT 37 Gail Dr Rocky Point, NY 11778