
(If you do not have an agent and work directly with the listing agent)
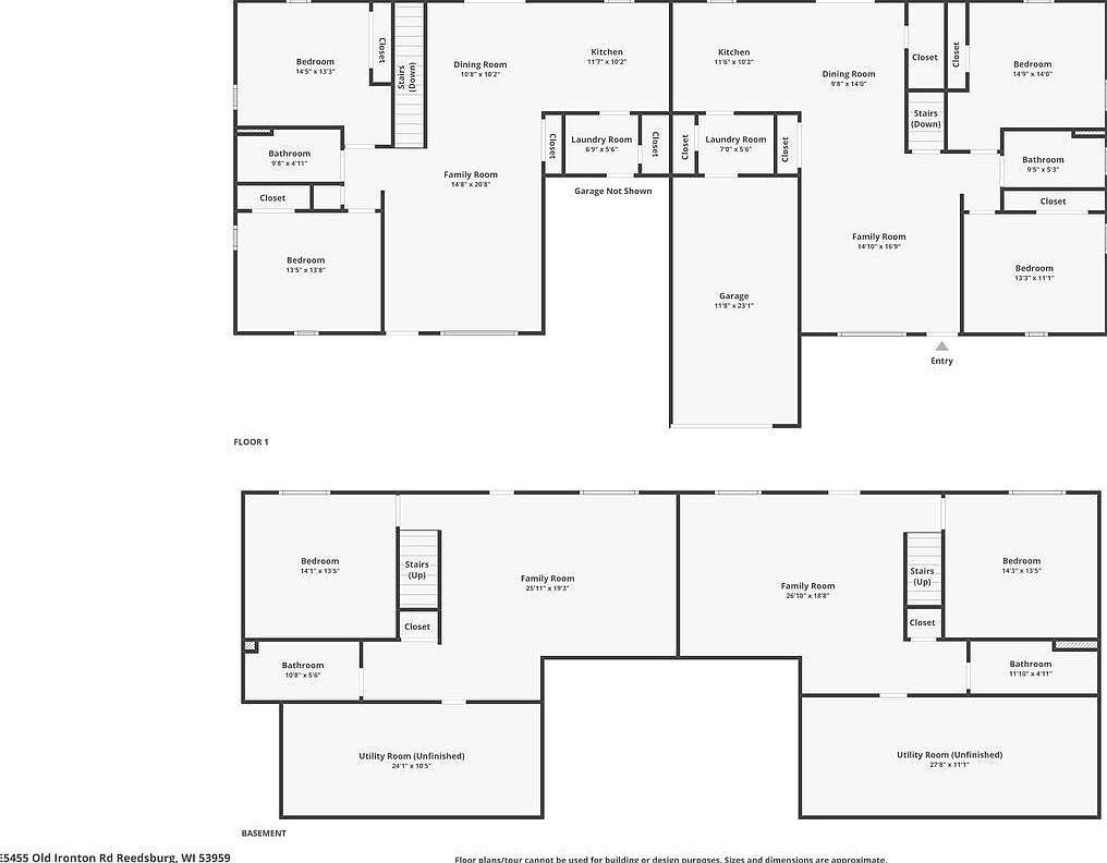
Showings begin:1/8 - Grade A dairy property boasts three Lely milking robots and a cow care system for up to 180 cows. A drive through feed alley in the 200?x108? free stall barn which is attached by a covered alley to the 60x100 double 12 parlor. Manure is handled by a push grate and fed into an in-ground pit. Four feed bunkers & a silo complete the facility. Seller is willing to sell the facility without the robots for a reduced price. A two unit duplex completes this property which each property has 3 bedrooms & 2 bathrooms with a walkout basement to the back yard. Built in 2004, this duplex is in great shape & features many modern amenities. Duplex may be able to be split off from rest of dairy/barn property with some restrictions. Ask for more details. This is a great opportunity!
E5455 Old Ironton Rd Reedsburg, WI 53959