
(If you do not have an agent and work directly with the listing agent)
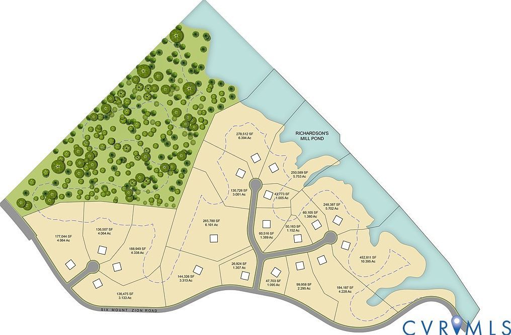
Prime development opportunity within the Stonehouse Master Planned community near Williamsburg, VA. Tract 3 Parel D is an 80 acre tract on the banks of Richardsona??s Mill Pond. There is a conceptual lotting plan for 19 large lots, that are allowed under the master plan. The property is a part of the Stonehouse Planned Unit Development and is subject to the Stonehouse Master Plan and Proffers. The property is under the control of the Stonehouse Owners Foundation Property Owners Association. The Stonehouse community homeowners enjoy a considerable amenity package that currently includes, the Laurel Grove Park and recreation facility, tennis courts, and miles of existing multi-use paths and trails. The Stonehouse Golf Club, is also within the Stonehouse community. The location is exceptional, being 45 minutes to Richmond, 40 minutes to Richmond Airport, 20 minutes to Colonial Williamsburg, 1 hour and 30 minutes to Virginia Beach, and within a few hours of Washington, DC. This is one of the last chances to develop such spacious lots in a highly desirable area. Documents are available for site plan, proffers, and proposed development costs.
9351 Six Mount Zion Rd #15 Toano, VA 23168