
(If you do not have an agent and work directly with the listing agent)
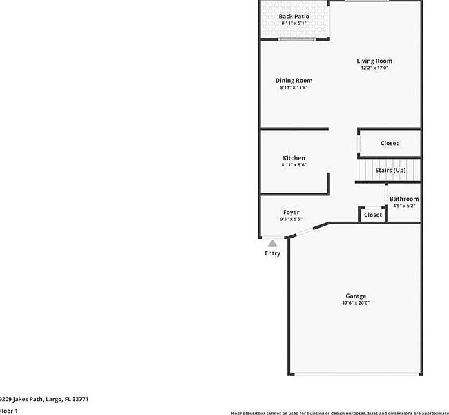
Welcome to this spacious 3-bedroom, 2.5-bathroom, 2-car garage townhouse. Live a maintenance-free life without sacrificing comfort and convenience. Upon Entering, you will notice the open floor plan with plenty of natural light from large windows and skylights. The first floor features a sizeable kitchen, which is equipped with brand-new stainless steel appliances, including a dishwasher, electric range, microwave, and refrigerator. The living room offers plenty of space for relaxation and entertaining. A convenient half-bathroom on this level ensures easy access for guests. Upstairs, youa??ll find the primary bedroom, which offers ample closet space and easy access to an en-suite bathroom. The additional bedrooms are generously sized and provide ample storage space. An additional full bathroom serves the other two bedrooms, making this layout perfect for families or guests. The home is equipped with several recent updates like an HVAC system from 2023 and a 2019 water heater. The HOA replaced the roof in 2020, so you can have peace of mind. The included washer and dryer make moving in even easier. The attached Two-car garage and driveway offers ample parking and easy access. In addition to its private amenities, this community also offers a shared pool and hot tub, perfect for relaxation and recreation. The property provides convenient access to public transit and is just a short drive to local airports and white-sand beaches. Schedule your tour today!
9209 Jakes Path Largo, FL 33771