
(If you do not have an agent and work directly with the listing agent)
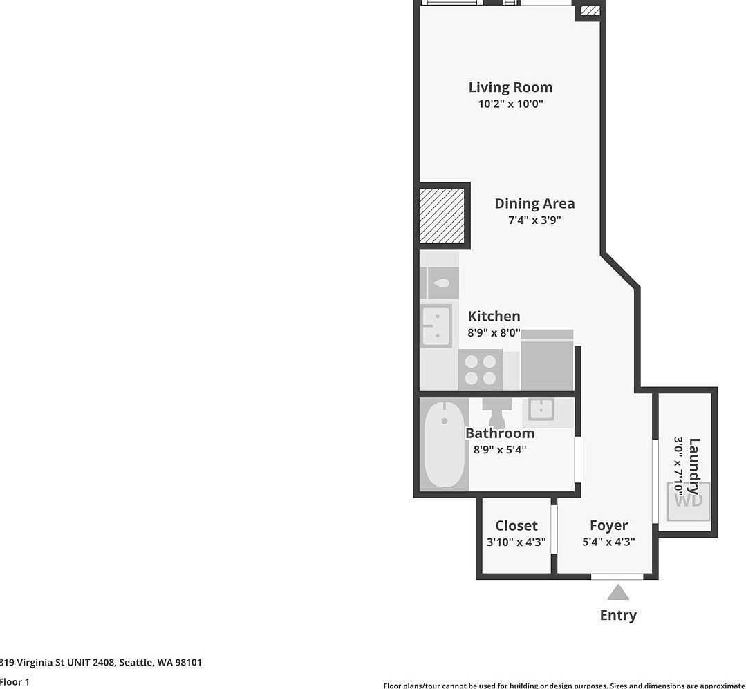
Experience upscale living, lavish amenities and a vibrant location at The Cosmopolitan. This 24th floor studio has an in-unit washer/dryer, full bath, granite countertops, SS appliances, central A/C and is freshly painted. Large storage room for your extra personal items. Great amenities: 24-hr concierge, resident lounge, rentable guest suite, gym, sauna/hot tub, conference room, business center & rooftop terrace w/ breathtaking Seattle views. Secure FOB-controlled access. 100% walk & transit score. Walking distance to Whole Foods, Pacific Place, Space Needle, Pike Place, Amazon, Google & Apple. Enjoy urban life with a myriad of dining and entertainment options. Dogs & cats allowed. Move-in ready. No rental cap.
819 Virginia St UNIT 2408 Seattle, WA 98101