
(If you do not have an agent and work directly with the listing agent)
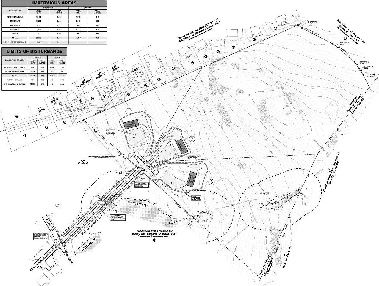
Introducing Pomona Estates a?? a rare and exceptional BOHA-approved development opportunity tailor-made for builders or investors seeking to create high-end luxury homes in one of Northern Westchestera??s most desirable locations. This exclusive 3-lot subdivision is situated just minutes from Cortlandt Town Hall and boasts a private road, town water access, and an ideal setting for upscale residential construction. Each lot offers generous space and privacy, with the central Lot (#2) presenting significant upside potential: the expansive 10-acre parcel may be further subdivided pending a sewer access agreement with an adjacent property a?? unlocking additional value for the right developer. Strategically located in the Lakeland School District, and only 5 minutes to the Peekskill Metro-North Station, Pomona Estates offers a seamless 60-minute commute to NYC, making it an ideal destination for discerning buyers seeking luxury living without sacrificing convenience. Builders have the unique opportunity to engage early buyers in the customization process, allowing for personalized design and premium upgrades a?? a compelling value-add that enhances market appeal and sales velocity.
78 Eton Ln Cortlandt Manor, NY 10567