
(If you do not have an agent and work directly with the listing agent)
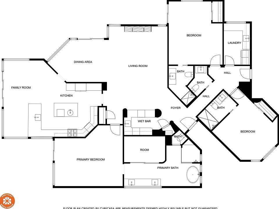
Spectacular South Mountain, Fairway and Lake Views. Furnished Golf Course home at this premiere Indian Wells Location. The sought-after Doral floor plan features an open-concept layout thats perfect for entertaining. Further enhanced by a double-sided fireplace, which is a focal point for both the Living Room and Family Room. A Chef's Kitchen with granite counter finishes, rich Cabinetry and breakfast Nook. The Primary Suite boasts a spa-style bath with dual vanities and a spacious walk-in closet. Guests will enjoy the comfortable 2nd Bedroom with en-suite bath & the versatile 3rd bedroom which could serve as a Den offers custom built-ins, enhancing the home's functionality. Step outside to your private patio, where you will enjoy stunning Mountain, Lake Views and unforgettable evening sunsets. Completing this exceptional home is a 2-car Garage with a dedicated Golf Cart Garage. Community Pool just steps away. Newly renovated Country Club featuring a Private Golf Course, Fitness Ctr, Dining & new Courts Pavilion!
75315 Saint Andrews Ct Indian Wells, CA 92210