
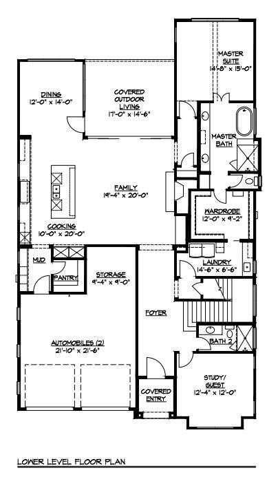
Description: You can own new construction in the heart of Richardson and be 1 of only 18 families to call this single cul-de-sac, boutique community HOME! Gorgeous, transitional-style, open-concept home with a pool-sized backyard. 2 bedrooms down, oversized kitchen island for entertaining, laundry room connected to the owner's closet for convenience, & private owner's retreat with vaulted ceilings to allow sunlight to pour in. White oak HW floors, quartz countertops, designer lighting and upscale finishes around every turn! Be sure to round the corner to view the oversized garage with a golf-cart parking space or the generous storage for bikes or a workshop. Near neighborhood parks, bike trails, & close proximity to highly sought-after Mohawk Elementary & other beloved local venues.
7 Mimosa Place, Richardson, TX, 75080