
(If you do not have an agent and work directly with the listing agent)
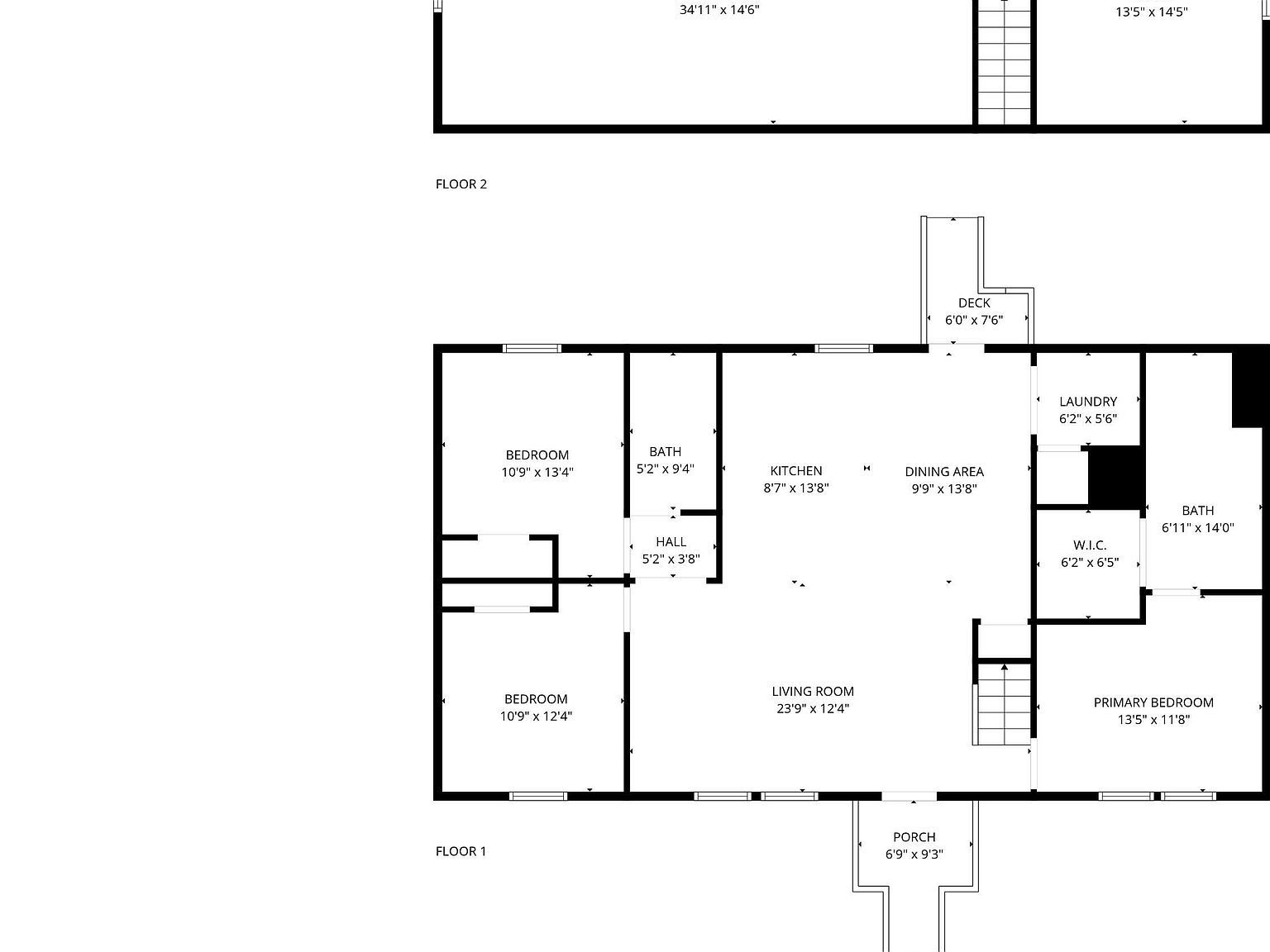
Great REO Opportunity! Bring All Offers! Come and Check Out This 3 Year Old, 1.5 Story, True Modular REO Home That Features an Open Floor Plan PLUS Huge Finished Bonus Rooms on the Second Floor! Almost 2000 Sqft Home Features Split Floor Plan, Stainless Appliances and Great Owners' Suite with Walk-in Closet, Dual Vanities and Walk-in Shower. Home sits on 100x200 wooded, naturalized lot with Wooden Privacy Fenced Backyard. Sold ''As-Is''.
692 Sandhill Dr Dudley, NC 28333