
(If you do not have an agent and work directly with the listing agent)
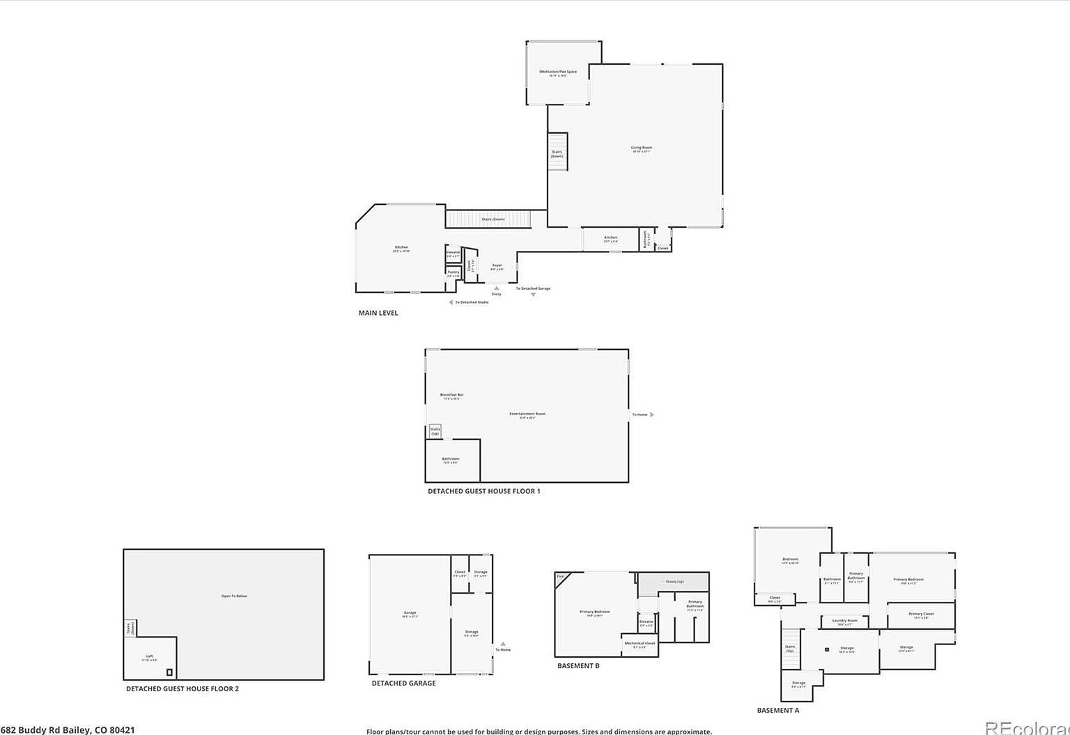
Welcome to Mizukara Rancha??a private retreat nestled on 35 acres with breathtaking mountain views and unique living spaces. This extraordinary home blends natural beauty with modern comfort, offering a serene escape just minutes from everyday conveniences. The expansive great room features soaring ceilings, a cozy fireplace, and abundant natural light, creating a warm and peaceful atmosphere. The meditation room is your retreat, offering stunning views and a calming atmosphere. The heart of the home is the modern 20' x 20' kitchen designed for both function and style. Two tone cabinets and sleek Quartz countertops pair perfectly with Bosch and Jenn-Air appliances. The expansive island offers storage on both sides and there is a walk-in pantry. The corner fireplace and large picture window with inspiring views offer unparalleled ambiance. Oversized sliding doors open to a spacious deck perfect for entertaining or relaxing with a view, and the Butlera??s Pantry adds extra convenience. Two bedrooms with en suite bathrooms on the lower level present privacy and views. The luxurious primary suite was designed with accessibility in mind, ideal for someone seeking to age in place. Take the elevator or the stairs and prepare to be enveloped in tranquility. The spa-inspired bath is highlighted by the roll-in shower. Corner fireplace in the bedroom draws your eye to the oversized sliding door with access to the west facing patio and deck with a built in hot tub. Enjoy multiple outdoor living spaces, a putting green, and a beautifully landscaped yard complete with a koi pond and cascading waterfall. It features a worry-free whole house generator! Down the private drive, a separate 1,440 sq ft studio offers flexible space for creative pursuits or guests, featuring vaulted ceilings, a loft, breakfast bar, and private bathroom. The 2 car oversized detached garage has a workshop and storage. This property is like no other, presenting the best of mountain living and 1 hour to skiing!
682 Buddy Rd Bailey, CO 80421