
(If you do not have an agent and work directly with the listing agent)
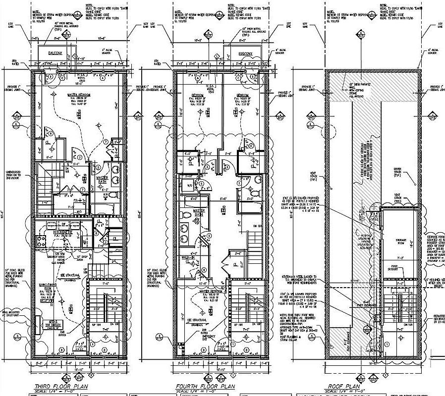
3 Duplex Building For Sale Between Albany and Troy Ave - Crown Heights Border 653 Maple St Brooklyn NY 11203 Property Overview This brand-new ground-up construction is delivered in finished condition, offering a rare opportunity to own a 20-foot wide multi-family building in Brooklyn. Sitting on a 2,000-square-foot lot (20' x 100'), the property offers 4,840 square feet of residential zoning space. The structure is designed for significant depth, reaching 60.5 feet long. It perfectly balances high-density living with generous private amenities, including a full basement, four residential stories, a rooftop accessible to everyone, and a large backyard. The Three Duplex Units The building is uniquely divided into three distinct duplex apartments, each offering a 3-bedroom, 2-bathroom layout: * - Unit 1: This duplex covers approximately 1,154 square feet and utilizes the first floor and the large basement area. This unit features private access to the large backyard. * - Unit 2: A spacious middle duplex totaling approximately 1,182 square feet across two levels. This unit includes a porch in the back. * - Unit 3: The upper duplex, also totaling approximately 1,182 square feet, which features easy access to the rooftop. This unit also includes a porch in the back. Key Measurements & Features * - Lot Dimensions: A 20' x 100' lot totaling 2,000 square feet. * - Building Dimensions: An expansive 20' wide by 60.5' long footprint. * - Rooftop: The top level features a rooftop area accessible to all residents, with a 273-square-foot bulkhead for convenient access. * - Large Backyard: The property features a large rear yard that extends approximately 39.5 feet deep. * - Bedrooms: Every unit is designed with a private master bedroom plus two additional bedrooms. * - Bathrooms: Each duplex provides two full bathrooms. This property is a rare find that combines modern four-story masonry construction with the expansive feel of a full basement and a rooftop for everyone to enjoy. Exclusive listing by Valerie Sebbag 555 Properties LLC For viewing and more information call Valerie Sebbag
653 Maple St Brooklyn, NY 11203