
(If you do not have an agent and work directly with the listing agent)
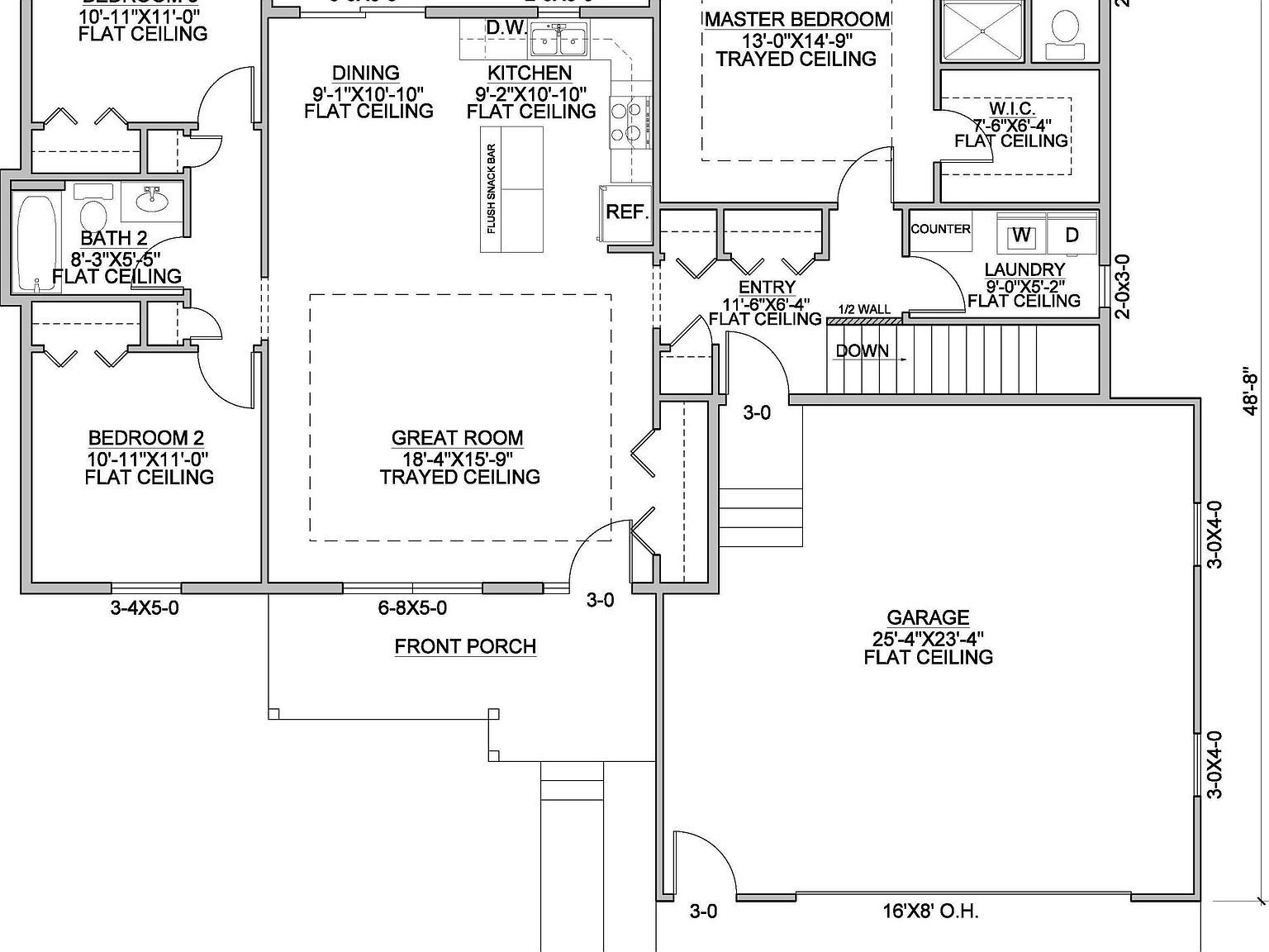
TO BE BUILT!! This 3 bedroom, 2 bath farmhouse style ranch sits on two spacious lots in Michaywe. Ground has not been broken as of yet, so you may pick out EVERYTHING!! Walk in from covered front porch to spacious great room with 10' ceilings and then open kitchen/dining area. The primary bedroom is behind the garage with large bath containing walk -in shower AND walk-in closet. The other two bedrooms are on the opposite side of house with another full bath. This plan has plentiful closets, main floor laundry, 2 car garage, natural gas forced air heat, central air along with cable internet. Plus full basement with two egress windows! And also enjoy the Michaywe amenities! Call today to get the ball rolling!!
649 Michaywe Dr Gaylord, MI 49735