
(If you do not have an agent and work directly with the listing agent)
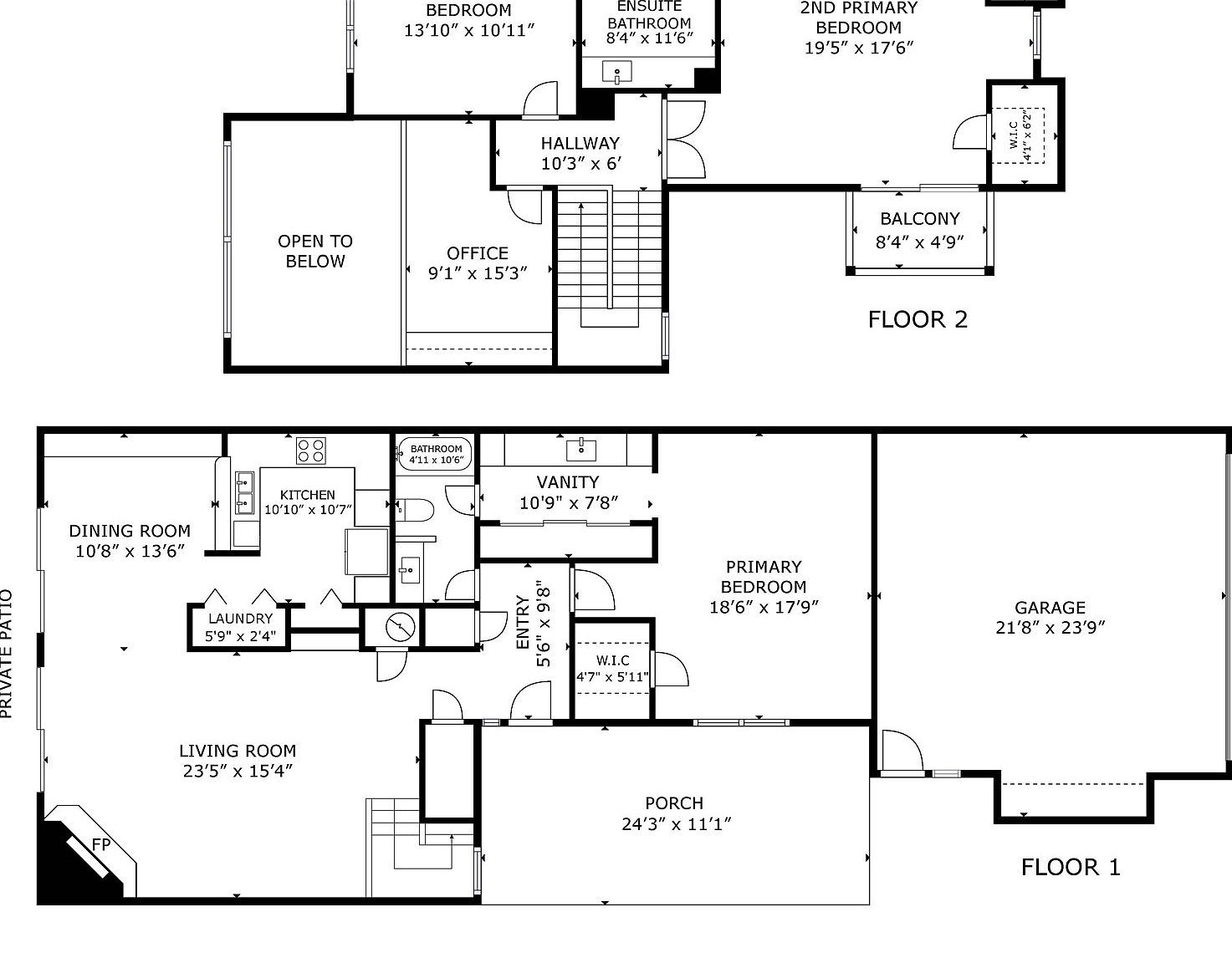
Dona??t miss this spacious townhome in an incredible North Dallas location featuring a versatile layout (dual primaries!) that can flex with your needs. Conveniently located in a quiet & friendly neighborhood near every amenity you could ever need, zoned to top-rated schools in Richardson ISDa??including the award-winning Brentfield Elementary! Preston Green residents also enjoy a LOW HOA (includes landscaping) & access to a saltwater pool, outdoor grill & covered seating areas, all surrounded by lush shade trees. Only three units boast direct gated access to the pool, and this townhome is one of them! Front entry is tucked away from the street opening to the main floor with a fabulous 2-story living room featuring a dramatic floor-to-ceiling fireplace, built-in bookshelves, oversized windows (all replaced in 2022) & sliding glass doors to access the private back patio. Amazing natural light throughout! More charming built-ins in the dining area & kitchen, complete with updated SS appliances (microwave, dishwasher & range with air fryer settinga??AUG 2022) & hidden utility closet. Fridge, washer & dryer ($3K valuea??purchased in 2022) are INCLUDED! Large first-floor primary boasts a separate entrance to the front porch, walk-in closet & ensuite that can be accessed from the main living areas OR closed off for privacy. Lofted second floor with office space provides a degree of separation between the first floor & remaining bedrooms. Second primary has a private balcony & dual walk-in closets. Other updates include brand-new turf outside + backyard fence (2025), new tracks & garage door opener (2024), fully rebuilt HVAC (new AC & furnace), hot water heater & sliding glass doors replaced (2022). All conveniently located near major highways, minutes from great schools, neighborhood parks, shopping, dining & Prestonwood Country Club.
6437 Cedar Hollow Dr Dallas, TX 75248