
(If you do not have an agent and work directly with the listing agent)
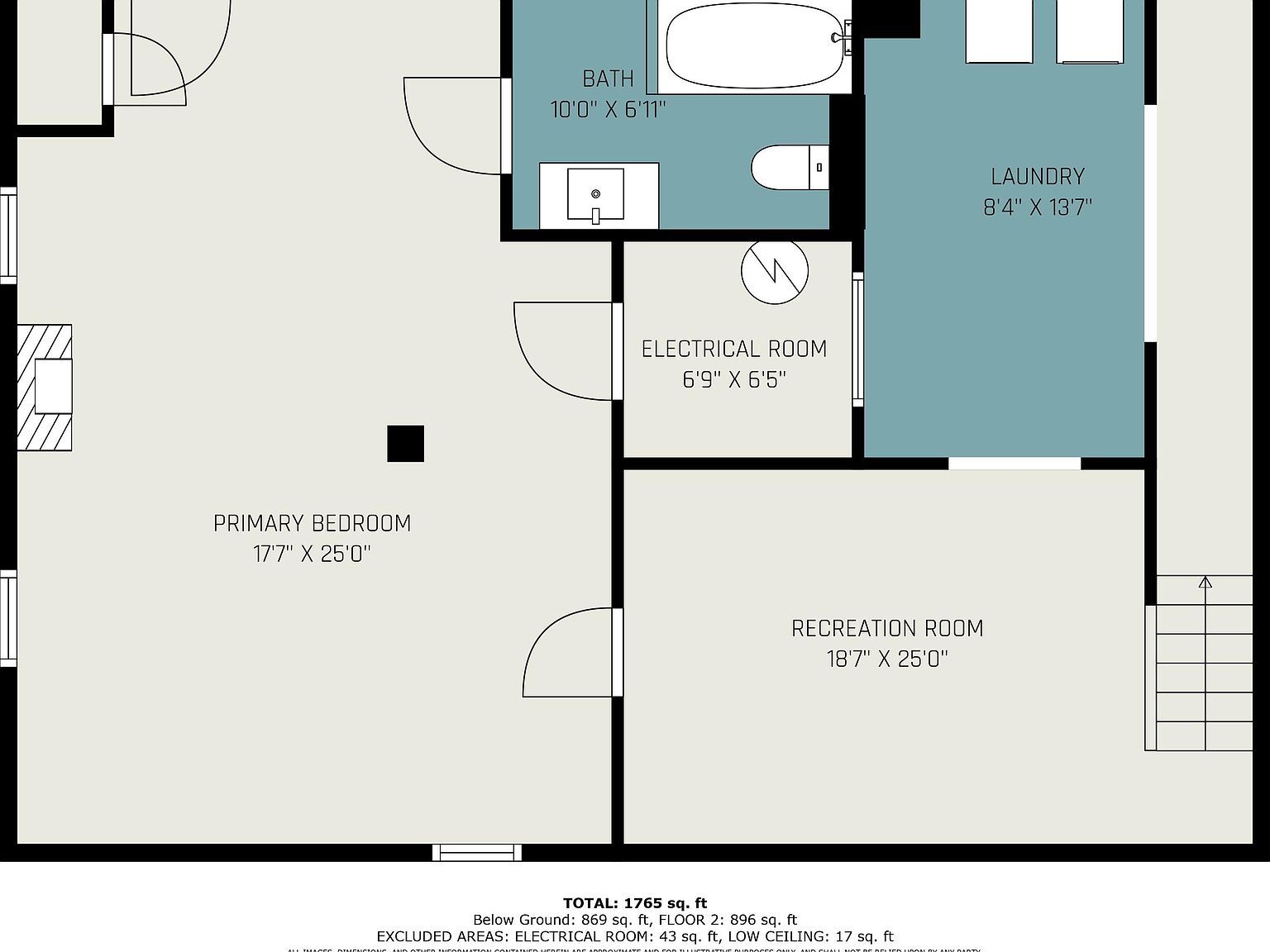
Discover the perfect blend of tranquility and convenience in this charming 3-bedroom, 2-full bath ranch home located on a serene, quiet street in rural Covington. This inviting residence features a fully finished basement with a walk-out, offering abundant space for living, entertaining, and relaxation. Step inside to find a warm and welcoming open floor plan. The well-appointed kitchen, complete with modern appliances and ample counter space, is perfect for preparing delicious meals for family and friends. The cozy bedrooms provide a peaceful retreat, while the two full bathrooms offer comfort and style. The finished basement adds an extra dimension to this beautiful home, providing a versatile space that can be used as a family room, home office, or recreational area. The walk-out basement seamlessly extends your living space to the outdoors, where you can enjoy the fresh air and scenic surroundings from your private backyard. Situated on a quiet street, this home offers the perfect escape from the hustle and bustle of city life while still being conveniently close to local amenities.
594 Garner Dr Covington, KY 41015