
(If you do not have an agent and work directly with the listing agent)
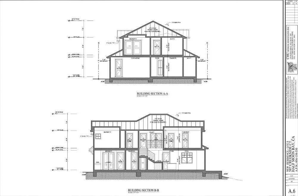
Welcome to Lot 9 of Creekside Court, the first home to be offered in Half Moon Bay's newest luxury subdivision of 12 new homes! This high-end residence is currently under construction and is estimated to be completed December, 2025. Lot 9 offers 2,839 sqft of thoughtfully designed living space featuring 4 spacious bedrooms and 3.5 elegant bathrooms. The two-story layout includes a desirable ground-floor bedroom with a private ensuite perfect for guests or multigenerational living. Enjoy an open-concept floor plan with quality finishes throughout and a seamless indoor-outdoor flow, ideal for modern coastal living. The attached 2-car garage adds convenience, while the home's prime location places you in the heart of historic downtown Half Moon Bay, just moments from charming shops, farmer's market, restaurants, beaches, and trails. Complete with access to Hwy 1 & Hwy 92 for easy commuting to San Francisco and Bay Area. Introducing Creekside Court Community -a new coastal enclave in Half Moon Bay, perfectly positioned between Highways 92 and 1. Just minutes from the ocean bluffs, this thoughtfully designed community features 12 spacious lots, each offering the chance to own your new dream home amidst stunning natural surroundings. Experience luxury coastal living at its best!
587 Creekside Ct Halfmoonbay, CA 94019