
(If you do not have an agent and work directly with the listing agent)
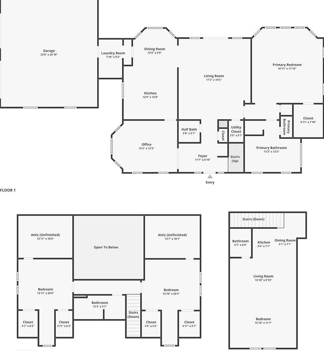
Escape to this exceptional 2-story home surrounded by majestic oak trees and nestle between two stunning state parks. Set on a sprawling 40 acres of serene countryside, this ranch property is a nature lover's dream, featuring not one, but two picturesque ponds. This beautifully designed home boasts a welcoming wraparound porch, ideal for peaceful outdoors. Inside, youll find a modern kitchen recently updated with new granite countertops, refreshed cabinetry, and a spacious island complemented by new appliances. The breakfast nook opens to a stunning living room, highlighted by a vaulted 16-foot ceiling and windows that flood the space with natural light. The main-level primary bedroom offers breathtaking views of the large pond in the backyard. It features an updated en-suite bathroom with a luxurious jacuzzi tub and a walk-in shower with elegant tiling. Another large versatile spare room currently serves as an art studio. A guest bathroom and laundry room finish off the downstairs. Upstairs, two inviting bedrooms, each with 2 large closets and a full bathroom, provide ample space for family or visitors. Additional highlights include a central vacuum system, updated light fixtures, and a 2-car garage with a studio apartment above it, complete with a kitchen and full bathroom perfect for guests or rental income. The property also features a 30x50 metal shop for tools and toys with 16x50 overhangs, a 16x48 RV carport with power and water, a steel barn with two horse stalls and a tack room, and a large chicken coop, making it ideal for hobbyists and livestock. With two stocked ponds enhancing the property's charm and two wells plus a corral for functionality, this home perfectly blends country living with convenience. Located just 35 minutes from Austin-Bergstrom International Airport and Tesla's Giga Factory, you can enjoy the peace of rural life while having urban amenities!
584 Old Antioch Rd Smithville, TX 78957