
(If you do not have an agent and work directly with the listing agent)
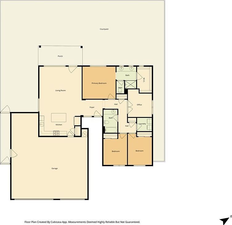
Gorgeous home built in 2021, meticulously cared for, with UPGRADES! This 3 bedroom + office & 2 bathroom home in the homes-only Rivers Edge community is minutes from the Colorado River in sunny Bullhead City. A standout feature is the 36 foot boat deep 3-car garage with 8 foot doors with plenty of room for all your vehicles & toys! Beautiful curb appeal with fresh landscaping in the front. The back is a blank slate where you can make your backyard dreams come true OR simply enjoy low maintenance living. Indoors, no expense has been spared to make this home tasteful and inviting. All the windows throughout have exquisite white shutters which really adds to the "wow" factor of each room. Luxury floors and updated paint and color choices make this an ideal move-in ready option. The kitchen has modern fixtures and an island. It is open to the main room for a true open concept living space. The layout in this house just makes sense. In the primary bedroom, there is plenty of room and natural light, with direct access to your primary bathroom featuring dual sinks, a tile shower, separate toilet room, and generously sized walk-in closet. Down the hall, the double doors give way to the perfect home office or flex space. Indoor laundry is located in its own room around the corner in the hallway, a great perk for those summer days. Two more individual bedrooms finish off the front of the home, side by side with mirror layouts. If you are looking for a GREAT home in the area, look no further; with this garage space, living space, and location... all your boxes are checked!
509 Paddock Dr Bullhead City, AZ 86442