
(If you do not have an agent and work directly with the listing agent)
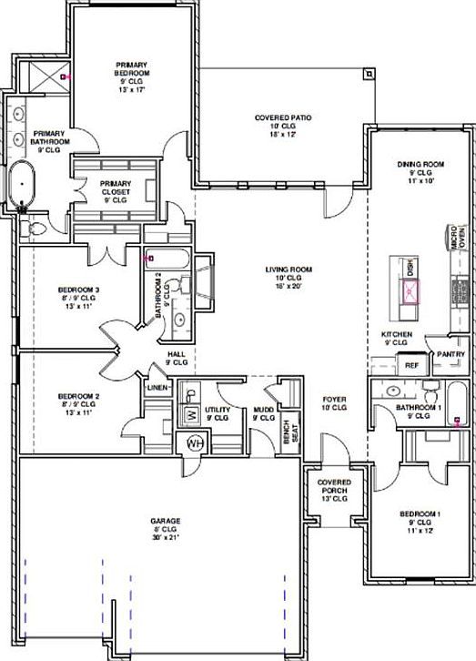
This beautifully designed 4-bedroom, 3-bathroom home with a 3-car garage offers the perfect blend of functionality and style. The open-concept layout creates a seamless flow between the kitchen, dining, and living areas, ideal for entertaining and everyday living. The spacious primary suite is a true retreat, featuring a generously sized primary bedroom and a spacious bathroom designed for comfort and relaxation. Thoughtful storage solutions are found throughout the home, ensuring everything has its place. Step outside to enjoy the large covered back patio, perfect for outdoor gatherings, quiet mornings, or relaxing evenings. Located in one of the areaAca?!a?cs most desirable communities, Mustang Park offers incredible amenities including a neighborhood pool, fitness gym, and clubhouse, giving you resort-style living right at home. This home combines quality craftsmanship, modern design, energy efficiency and an unbeatable location Aca?!a?? donAca?!a?ct miss your opportunity to make it yours!
5013 Vine Cliff Rd Mustang, OK 73064