
(If you do not have an agent and work directly with the listing agent)
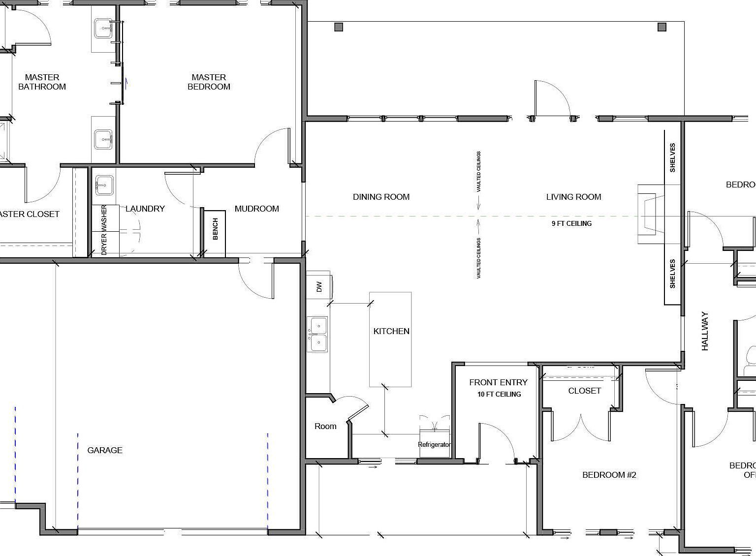
This home can be personalized, customized and modified working with the builder, a truly rare find! Offering $20,000 to use towards closing costs, rate buydown, home upgrades or towards a block wall. Buyers choice! As configured, this 4 bedroom, 2.5 bath single family home blends quality, flexibility and value in the active new community Valley Gate Estates in Enoch, Utah. Enjoy a massive 3-car garage, a primary bedroom with a walk-in closet, two sinks, spacious 9 ft vaulted ceilings and a kitchen that looks out over the dining and living room areas. The builder is excited to meet you and go over your perfect home ideas. He is thrilled to show you active constructions, discuss options and come up with a plan. Have a time frame in mind? No problem! Let's discuss.
4953 Winchester Dr Cedar City, UT 84721