
(If you do not have an agent and work directly with the listing agent)
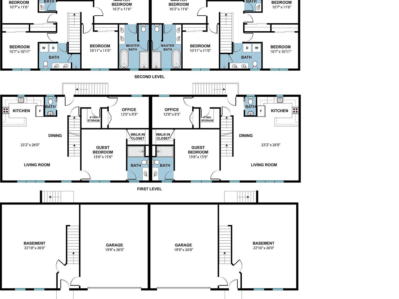
New construction townhome built by a respected local builder known for quality craftsmanship and clean, modern design. This residence offers approximately 2,300 square feet of above-grade living plus a finished lower level, thoughtfully laid out across three levels. The main floor features an open-concept design anchored by a well-appointed kitchen with white and white oak cabinetry, quartz countertops, and a full suite of appliances. Red oak flooring runs throughout the primary living spaces, creating a warm and cohesive feel. Upstairs, bedrooms are well-proportioned with bathrooms finished in porcelain tile, including a soaking tub and glass-enclosed shower. The finished lower level provides flexible space for a home office, gym, or media room. Equipped with natural gas heat, central air, on-demand hot water, thermopane windows, and programmable systems for efficient, modern living. Private garage includes EV-ready outlet. One of four newly constructed residences set across two architecturally consistent buildings, offering shared outdoor space and guest parking. Located just minutes from Fairfield's downtown, train line, beaches, and major commuting routes, offering a blend of convenience, coastal lifestyle, and long-term value. *HOA info to be determined. Self Managed. Completion July-August 2026. All information subject to change, please verify independently.
45 Sterling St Fairfield, CT 06825