
(If you do not have an agent and work directly with the listing agent)
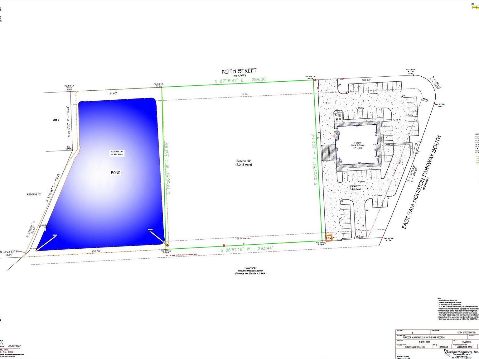
Commercial land use. Cleared 3.41 acres right off of Sam Houston Pkwy. 2.01 acres of useable land with a shared 1.39 acre detention pond. Ready to develop with city utilities available. Located less than 30 minutes from downtown Houston this parcel is surrounded by retail, medical offices and restaurants such as Academy, Kirkland's, St. Luke's Health, Walmart, Chick-fil-A and Loews. The current owner has an agreement with bank that he will do the detention pond maintenance and be reimbursed. There is also a percentage of taxes shared on the detention pond as well.
4242 Keith St Pasadena, TX 77504