
(If you do not have an agent and work directly with the listing agent)
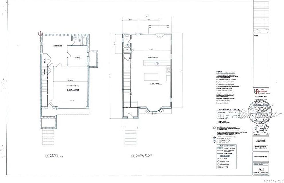
Welcome to 422 Nuber Ave a blank canvas for your dream home! This spacious piece of land is a prime canvas for your vision of the perfect home and has approved architectural review board single family home plans. This property offers the opportunity to build a haven tailored to your preferences. Opportunity to design a home that reflects your lifestyle and preferences. Picture hosting gatherings in your own private oasis with enough space for a lush garden, outdoor entertainment area, or whatever your heart desires. Located close to Metro North, bus stop 1 block away, multiple parks and fields, and the Hutchinson River Pkwy. Seize the opportunity to craft a home that is uniquely yours and waiting for your touch to transform it into the home of your dreams.
422 Nuber Ave Mount Vernon, NY 10553