
(If you do not have an agent and work directly with the listing agent)
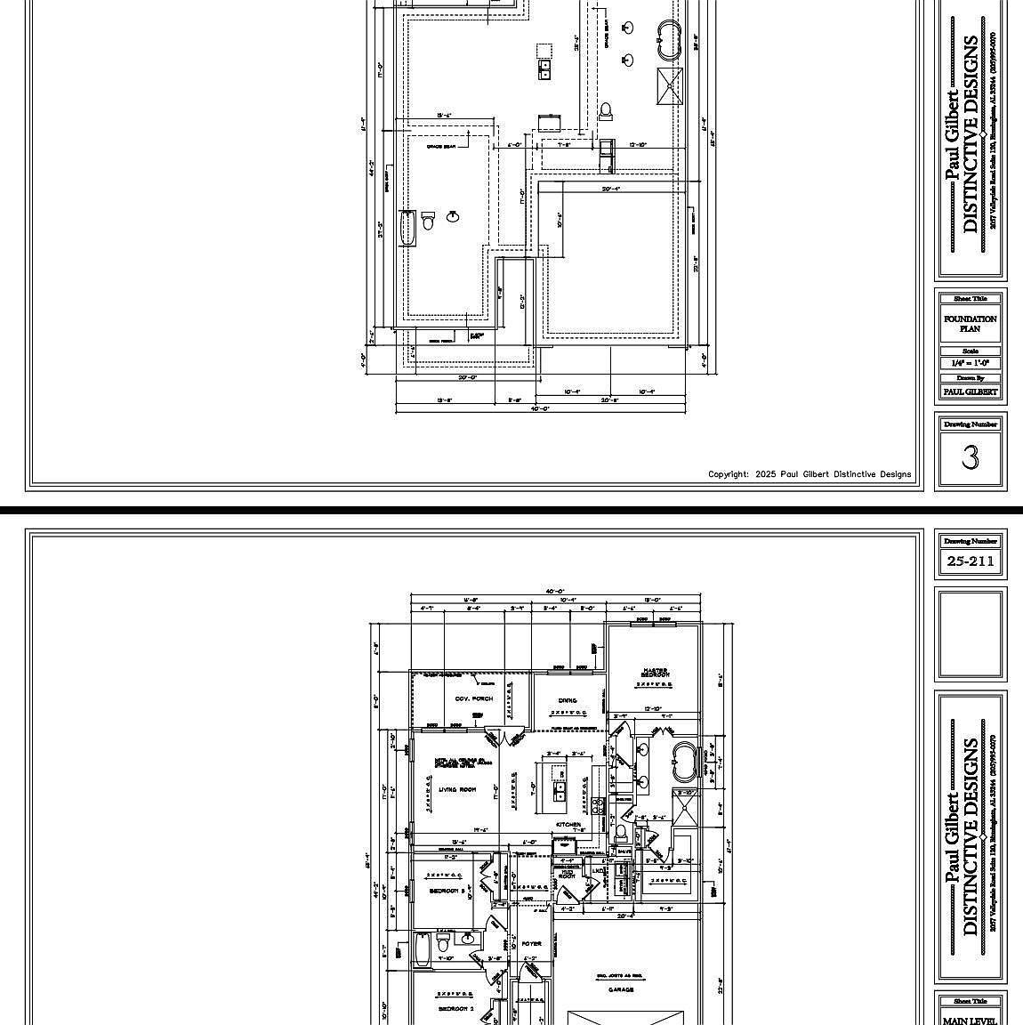
PRESALE / PROPOSED CONSTRUCTION in TRUSSVILLE. Home is not built yet - construction starts with a contract. Plans are for a modern, one level garden home with brick skirt surround (2 plans to choose from). 3 bedrooms, 2.5 bath, laundry/mud room, open living, dining, kitchen concept. Covered back patio. LVP flooring, granite (standard) or quartz (upgrade) available. Schedule a meeting with listing agent and builder to discuss plan and to get started. Plenty of standard options and upgrades available to choose from. This block on Alabama Blvd will feature several plans ranging from $320k - $390k. Only 6 lots available in total.
409 Alabama Blvd Trussville, AL 35173