
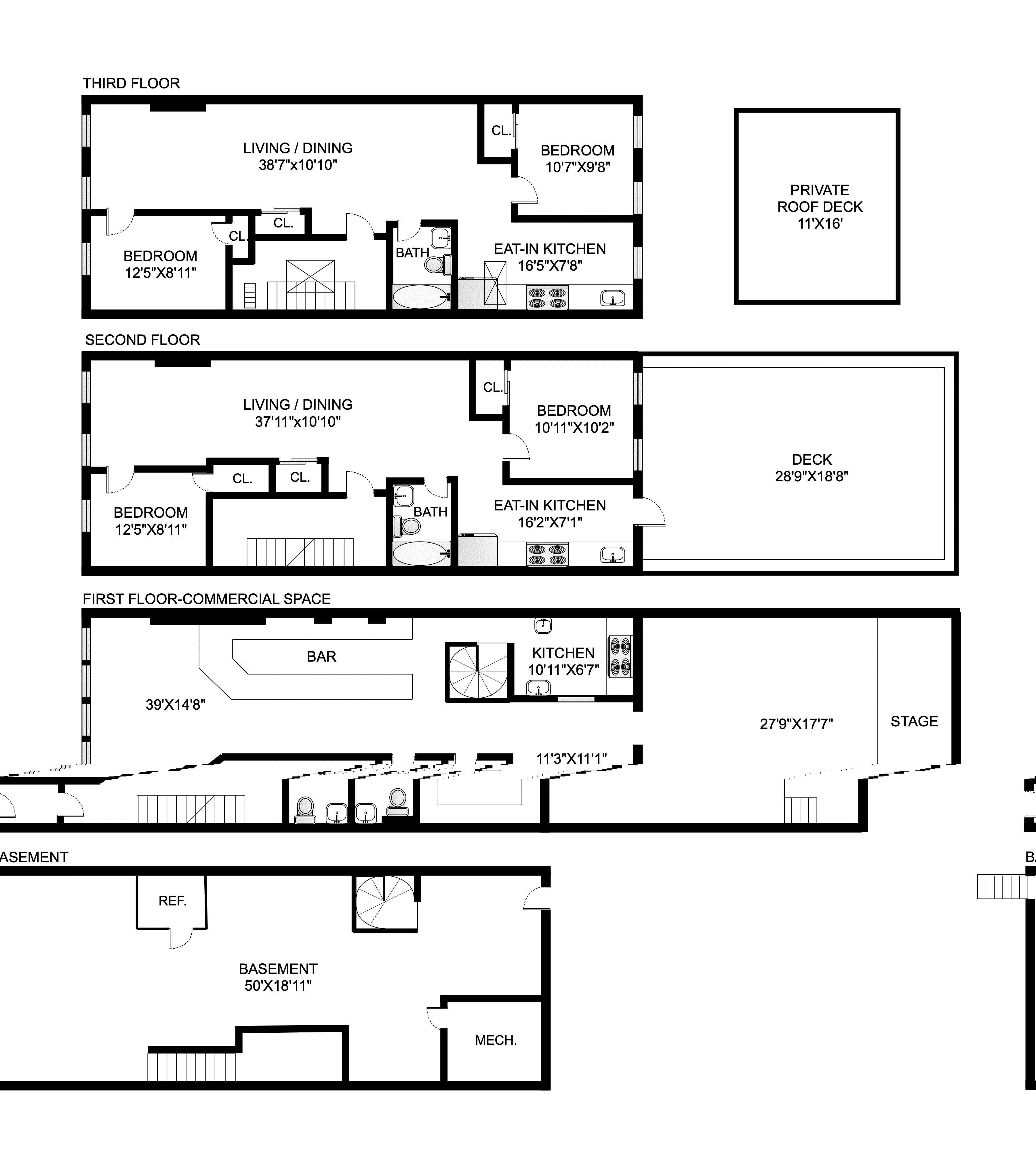
Presenting this robust mixed use building which features one of Brooklyn's most elegent and authentic commercial restaraunt, lounge, music venues in the borough. Additionally, the property also offers two, two spacious split-bedroom residental units both with outdoor space. The continued renaissance of all thing PLG is truly dynamic. Rogers Ave. has added a plethora of good and services to enhance your life style. Subway access is abundant with the easily accessible 2/5/Q/B/S. Prospect Park and the Brooklyn Botanic Garden, are features of the Lefferts Garden neighborhood both very close by. Lindl, Lincoln Market and Western Beef offer a variety of supermarkets. Both two bedroom units offer a similar internal footprint, and are Impeccably renovated, 2bed/1bath apartment sits nicely in Prospect Lefferts Gardens. A large and spacious living area presents a high quality of life. This bright home has been upgraded with new floors, appliances, lighting, and split-systems. The home offers a large OUTDOOR space which adds tremendous value to the Spring, Summer and Fall. The spacious living area presents a seperate dining area along with a sprawling living area provide much valued comfort. The commerical space is truly something for the building owner to be proud of as the venue is well received and draws an elegant yet authentic crowd. The Lounge offers an asthetic that is among the best in Brooklyn. Additionally, there is approximately 2000 sq. ft. of buildable...
408 Rogers Avenue,, Brooklyn, NY, 11225