
(If you do not have an agent and work directly with the listing agent)
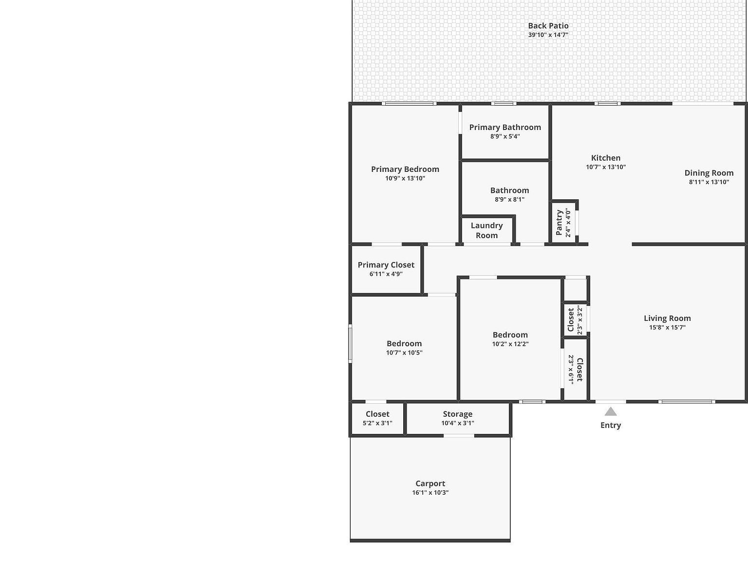
Centrally located, 1200 Sq Ft, 3-bedroom, 2-bath home on a spacious corner lot. This bright, open floorplan offers easy-care wood-look vinyl flooring in the main living areas and stylish modern touches throughout, including updated fixtures, lighting, ceiling fans, and window coverings. The large eat-in kitchen is the heart of the home, featuring a pantry, subway tile backsplash, island with storage, and French doors that open to a generous covered patio--perfect for entertaining. The primary suite includes a private bath and walk-in closet for added comfort and convenience. Enjoy the oversized enclosed backyard with a storage shed and endless potential for gardening, play, or your personal touch. A covered carport, air conditioning, washer and dryer complete this inviting property.
4055 E 1st St Tucson, AZ 85711